Мы используем куки-файлы. Соглашение об использовании
Площадь413 м²
Этажность2
КлассB
Отчёт о привлекательности объектаУзнайте, насколько помещение и район подходят для вашего бизнеса
Что входит в отчёт
  • Охват населения
  • Пешеходный трафик
  • Автомобильный трафик
  • Средний бюджет семьи по району
  • Арендные ставки рядом
  • Точки притяжения
  • Конкуренты в радиусе 1 км
  • Рекомендации по выбору места для бизнеса
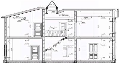
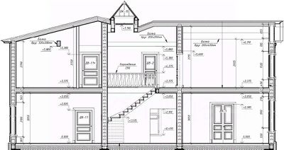
АГЕНТАМ ПЛАТИМ. РЕНТАВИК— участник ассоциации агентств КОКОН. Исторический особняк расположен в Василеостровском районе. Объект культурного наследия регионального значения. Один из немногих сохранившихся деревянных особняков в историческом центре Санкт- Петербурга. Налоговая: 16. Лифты: Нет. Вентиляция: Приточно-вытяжная. Кондиционирование: Сплит-системы. Безопасность: Круглосуточный доступ, Система пожаротушений, Видеонаблюдение. Парковка: Наземная. Описание помещения: Двухэтажный особняк. Вход парадный с улицы, дополнительный со двора. Электрическая мощность - 22,3 кВт. Индивидуальный тепловой пункт и разводка системы отопления с радиаторами. Подводка систем канализации и воды на первом этаже в водомерном узле. Разводка коммуникаций. Планировка: смешанная. Под чистовую отделку. Высокие потолки. Высота потолка: 3.7м. Тип налогообложения: С НДС. Лот 68188-68
lock

Войдите или зарегистрируйтесь
для просмотра информации

Просматривайте условия сделки и всю информацию об объекте
Сохраняйте фильтры в поиске и не вводите заново
Доступ к избранному с любого устройства
Неограниченное добавление в избранное
Позвоните автору
Вам ответят на все вопросы
Остались вопросы по объявлению?
Позвоните владельцу объявления и уточните необходимую информацию.
  • Инфраструктура
  • Похожие рядом
Приточная вентиляция
Местное кондиционирование
Помощь надёжных риелторов
Риелтор партнёр Циан поможет купить или продать любую недвижимость
205 000 000 ₽
2 714 251 $
2 322 089
Цена за метр
496 369 ₽
Налог
НДС включен: 36 967 213 ₽
Агентство недвижимости
Риелтор
Суперагент