Мы используем куки-файлы. Соглашение об использовании
Площадь719 м²
Этажность2
Отчёт о привлекательности объектаУзнайте, насколько помещение и район подходят для вашего бизнеса
Что входит в отчёт
  • Охват населения
  • Пешеходный трафик
  • Автомобильный трафик
  • Средний бюджет семьи по району
  • Арендные ставки рядом
  • Точки притяжения
  • Конкуренты в радиусе 1 км
  • Рекомендации по выбору места для бизнеса
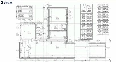
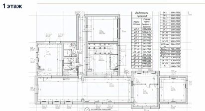
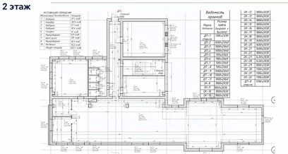
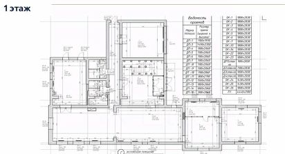
ОТДЕЛЬНО СТОЯЩЕЕ ЗДАНИЕ С СОБСТВЕННОЙ ПАРКОВКОЙ. ПЛАТИМ БОНУС. Здание расположено в Василеостровском районе в 15-ти минутах пешком от метро Приморская. Налоговая: 16. Лифты: Нет. Вентиляция: Приточно-вытяжная. Кондиционирование: Сплит-системы. Безопасность: Круглосуточный доступ, Система пожаротушений. Парковка: Наземная. Описание помещения: Здание свободного назначения, площадью 670,9м2 без учета террасы. входных групп. Первый этаж 348,2м2, второй 322,7м2. Выполнена предчистовая отделка. Есть вентиляционные машины, разводка вентиляции. Отопление ГВС два котла. Фасад кирпич. Планировка: открытая. Под чистовую отделку. Высокие потолки. Терраса/балкон. Тип налогообложения: НДС не облагается. Кол-во парковочных мест: 30. Лот 74142-68
lock

Войдите или зарегистрируйтесь
для просмотра информации

Просматривайте условия сделки и всю информацию об объекте
Сохраняйте фильтры в поиске и не вводите заново
Доступ к избранному с любого устройства
Неограниченное добавление в избранное
Позвоните автору
Вам ответят на все вопросы
Остались вопросы по объявлению?
Позвоните владельцу объявления и уточните необходимую информацию.
  • Инфраструктура
  • Похожие рядом
Приточная вентиляция
Местное кондиционирование
Помощь надёжных риелторов
Риелтор партнёр Циан поможет купить или продать любую недвижимость
350 000 000 ₽
4 692 337 $
3 987 882
Цена за метр
486 788 ₽
Налог
НДС не включен
Агентство недвижимости
Риелтор
Суперагент