Мы используем куки-файлы. Соглашение об использовании
Площадь1 914,2 м²
Этажность4
КлассC
Отчёт о привлекательности объектаУзнайте, насколько помещение и район подходят для вашего бизнеса
Что входит в отчёт
  • Охват населения
  • Пешеходный трафик
  • Автомобильный трафик
  • Средний бюджет семьи по району
  • Арендные ставки рядом
  • Точки притяжения
  • Конкуренты в радиусе 1 км
  • Рекомендации по выбору места для бизнеса
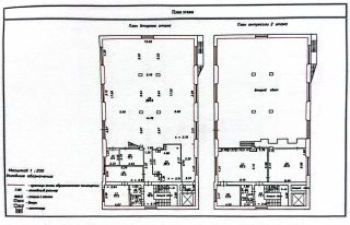
Арт. 127615186 Продажа здания (1914 м2) под производство с видовыми офисами в центре Санкт-Петербурга! НДС включен в стоимость. Производственные помещения - высота потолков 5.50 м. Офисы - высота потолков 2.80 м. Имеется грузовой лифт. Отдельный въезд в производственное помещение для грузового транспорта. В производственных помещениях есть вытяжка. Кран-балка. Санузел на каждом этаже. Назначение здания - нежилое. Наименование - производственное. Материал наружных стен - кирпичные. Год постройки - 1969 год. Капитальный ремонт был сделан в 2024 году. Площадь земельного участка - 779 м2. Категория земель: земли населенных пунктов. Виды разрешенного использования: для размещения промышленных объектов. Здание находится в пешей доступности от метро "Выборгская", "Площадь Ленина", "Горьковская", "Петроградская". Имеется выход на ровную крышу, где можно сделать видовую террасу. Близость к ключевым деловым, культурным и историческим объектам. Здание находится на берегу Большой Невки. Расположение в престижном районе подчеркнет статус Вашей компании!
lock

Войдите или зарегистрируйтесь
для просмотра информации

Просматривайте условия сделки и всю информацию об объекте
Сохраняйте фильтры в поиске и не вводите заново
Доступ к избранному с любого устройства
Неограниченное добавление в избранное
Позвоните автору
Вам ответят на все вопросы
Остались вопросы по объявлению?
Позвоните владельцу объявления и уточните необходимую информацию.
  • Инфраструктура
  • Похожие рядом
Центральное отопление
Помощь надёжных риелторов
Риелтор партнёр Циан поможет купить или продать любую недвижимость
330 000 000 ₽
4 512 667 $
3 874 013
Цена за метр
172 396 ₽
Налог
НДС включен: 59 508 196 ₽
Агентство недвижимости
Документы проверены
На Циан
8 лет
Объектов в работе
62