Мы используем куки-файлы. Соглашение об использовании
Площадь2 720,4 м²
Этажность5
Отчёт о привлекательности объектаУзнайте, насколько помещение и район подходят для вашего бизнеса
Что входит в отчёт
  • Охват населения
  • Пешеходный трафик
  • Автомобильный трафик
  • Средний бюджет семьи по району
  • Арендные ставки рядом
  • Точки притяжения
  • Конкуренты в радиусе 1 км
  • Рекомендации по выбору места для бизнеса
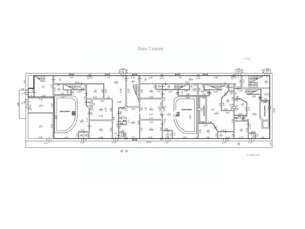
Отдельно стоящее 5-ти этажное здание 2720,4 кв.м. в Кировском р-не. 12 мин пешком от ст.метро "Автово". Ввод в эксплуатацию - 2011 год. Высота потолков - 3,1 м. Электроснабжение - 180,9 кВт по 3 категории. Теплоснабжение/ГВС - от собственной котельной на газе. Водоотведение - присоединение к городским сетям. 1 и 2 этаж предназначались под банный комплекс, 3 и 4 этажи под офисы. Есть место для установки лифта. ЗУ - 1608 кв.м. в собственности, благоустроен и имеет ограждение по границам, до 25 м/м. В данный момент здание свободно от арендаторов. При аренде в 1000 р/м2 за весь объект, окупаемость 9 лет. Возможна скидка.
lock

Войдите или зарегистрируйтесь
для просмотра информации

Просматривайте условия сделки и всю информацию об объекте
Сохраняйте фильтры в поиске и не вводите заново
Доступ к избранному с любого устройства
Неограниченное добавление в избранное
Позвоните автору
Вам ответят на все вопросы
Остались вопросы по объявлению?
Позвоните владельцу объявления и уточните необходимую информацию.
  • Инфраструктура
  • Похожие рядом
Автономное отопление
Помощь надёжных риелторов
Риелтор партнёр Циан поможет купить или продать любую недвижимость
295 000 000 ₽
3 970 589 $
3 331 489
Цена за метр
108 440 ₽
Налог
НДС включен: 53 196 721 ₽
Агентство недвижимости
Суперагент