Мы используем куки-файлы. Соглашение об использовании
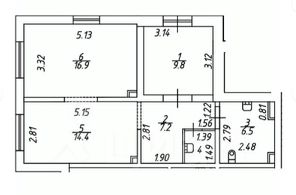
Помещение свободного назначения, 218 м²

Продается помещение свободного назначения, 218 м²

Площадь218 м²
Этаж1 из 25
ПомещениеСвободно
Отчёт о привлекательности объектаУзнайте, насколько помещение и район подходят для вашего бизнеса
Что входит в отчёт
  • Охват населения
  • Пешеходный трафик
  • Автомобильный трафик
  • Средний бюджет семьи по району
  • Арендные ставки рядом
  • Точки притяжения
  • Конкуренты в радиусе 1 км
  • Рекомендации по выбору места для бизнеса
АГЕНТАМ ПЛАТИМ. РЕНТАВИК— участник ассоциации агентств КОКОН. Жилой комплекс комфорт-класса Заповедный парк расположен в Приморском районе рядом с крупным лесным массивом - Новоорловским заказником. Близость к лесопарку создает благоприятный экологический фон, а также удачную возможность для времяпровождения на природе. Налоговая: 26. Лифты: Есть. Вентиляция: Приточно-вытяжная. Кондиционирование: Сплит-системы. Безопасность: Круглосуточная охрана, Контроль доступа, Система пожаротушений, Видеонаблюдение. Парковка: Наземная. Описание помещения: Блок трех помещений 56.9 м2, 71.5 м2, 90.2 м2 с панорамными окнами. Оснащены всеми необходимыми коммуникациями и системами. В каждом помещении отдельный вход и собственные санузлы. Электрическая мощность 54.64 кВт. Планировка: смешанная. Под чистовую отделку. Высокие потолки. Высота потолка: 3.59м. Тип налогообложения: УСН. Лот 84711-68
lock

Войдите или зарегистрируйтесь
для просмотра информации

Просматривайте условия сделки и всю информацию об объекте
Сохраняйте фильтры в поиске и не вводите заново
Доступ к избранному с любого устройства
Неограниченное добавление в избранное
Позвоните автору
Вам ответят на все вопросы
Остались вопросы по объявлению?
Позвоните владельцу объявления и уточните необходимую информацию.
  • Инфраструктура
  • Похожие рядом

Заповедный парк

  • Общая площадь218 м²
Приточная вентиляция
Местное кондиционирование
Помощь надёжных риелторов
Риелтор партнёр Циан поможет купить или продать любую недвижимость
51 364 620 ₽
686 373 $
586 850
Цена за метр
235 618 ₽
Налог
УСН
Агентство недвижимости
Риелтор
Суперагент
5,0・2