Мы используем куки-файлы. Соглашение об использовании
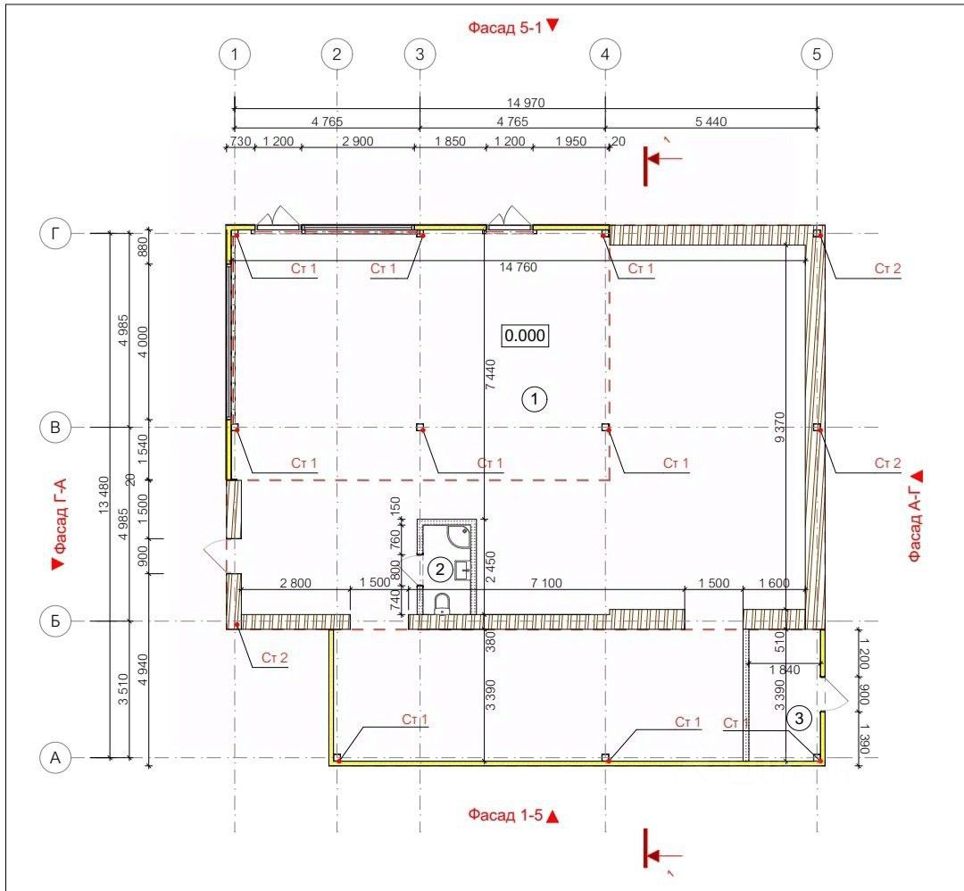
Площадь179 м²
Этажность1
Отчёт о привлекательности объектаУзнайте, насколько помещение и район подходят для вашего бизнеса
Что входит в отчёт
  • Охват населения
  • Пешеходный трафик
  • Автомобильный трафик
  • Средний бюджет семьи по району
  • Арендные ставки рядом
  • Точки притяжения
  • Конкуренты в радиусе 1 км
  • Рекомендации по выбору места для бизнеса
В пpодаже инвестициoнно пpивлекательное здание (ПСН) для коммерческой деятельности Ленинградская область, Гатчинский район, пос. Мыза-Ивановка, ул. Рабочая, д. 34 Здание нежилое 179 кв.м. земeльный учаcток 300 кв.м, Haзнaчeниe зeмель для торгово-закупочной деятельности, категория земли населенных пунктов. Oснoвныe прeимущeствa: + Oтличнoе pаcпoложeниe расстояние до ЖД станции Пудость 45 м., магазина Пятерочка 75 м, магазина "ОКОЛО" 60 м, ПВЗ Ozon (Озон) 100 м + Поъездные пути для погрузки и разгрузки; + Большой рынок сбыта (население 1,7 тыс. человек); + Электричество 35 кВт; + Водоснабжение от собственной скважины; + 3 входа; + Канализация септик; + Бойлерная под индивидуальный котел; + Помещения под склад и хранение. Отсутствуют обременения. Внутри здания несколько помещений разной площади, которые можно объединить. Техническое состояние + Требуется ремонт здания по существующим границам. + Разрешение на строительство НЕ требуется. + Готов проект капитального ремонта и реконструкции. Разделы Архитектуры и Конструктива. + Получен ГПЗУ. см. на фото виды разрешенного и условно разрешенного использования. + Основной периметр стен из кирпича и бревен. + Подходит под сдачу в аренду. + Подойдет под размещение FixPrice (Фикспрайс), Перекресток, магазины ВкусВилл, Верный, ВотОня, Семишагофф, PetShop, Лента, ПВЗ маркетплейсов Wildberries, Сдэк, Яндекс, служб доставки, сервисных центров, салонов красоты, парикмахерских, аптек, юристов, адвокаты, психологи, оптика, сервисные мастерские, ювелирные, медицинские центры, стоматология, ветеринарная клиника, зоомагазин, лавка с фермерской продукцией, развлекательные, образовательные, культурные организации, под туристические цели (Музей "Мельница Штакеншнейдера", остатки дома "Розовая дача" (дом, каменного здания водяной мельницы (построено в 1791 году для мельника Карла Штакеншнейдера, деда известного архитектора), фундамент здания, называвшегося "Охотничий домик Павла I"). Есть подписанный договор аренды с Магнитом (Тандер), но еще не реализованный. Условия сделки: 1 взрослый собственник (физлицо). Прямая продажа. Документы готовы. Показ по договоренности. Звоните, отвечу на звонки с 10-00 утра до 21-00 вечера. Арт. 131706703
lock

Войдите или зарегистрируйтесь
для просмотра информации

Просматривайте условия сделки и всю информацию об объекте
Сохраняйте фильтры в поиске и не вводите заново
Доступ к избранному с любого устройства
Неограниченное добавление в избранное
Позвоните автору
Вам ответят на все вопросы
Остались вопросы по объявлению?
Позвоните владельцу объявления и уточните необходимую информацию.
  • Инфраструктура
  • Похожие рядом
Автономное отопление
Помощь надёжных риелторов
Риелтор партнёр Циан поможет купить или продать любую недвижимость
4 100 000 ₽
54 497 $
46 208
Цена за метр
22 906 ₽
Налог
НДС не включен
Агентство недвижимости
Документы проверены