Мы используем куки-файлы. Соглашение об использовании
Площадь1 487 м²
Этаж1 из 2
Выс. потолков7.7 м.
Отчёт о привлекательности объектаУзнайте, насколько помещение и район подходят для вашего бизнеса
Что входит в отчёт
  • Охват населения
  • Пешеходный трафик
  • Автомобильный трафик
  • Средний бюджет семьи по району
  • Арендные ставки рядом
  • Точки притяжения
  • Конкуренты в радиусе 1 км
  • Рекомендации по выбору места для бизнеса
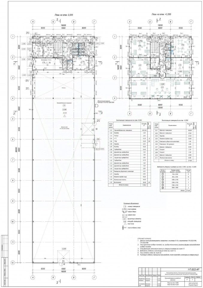
Арт. 132618856 Продаётся производственно-складское здание 2023 года постройки, расположенное в Индустриальном парке "НОВОСЕЛЬЕ". Общая площадь земельного участка 5000 кв.м. Общая площадь здания 1487 кв.м. Участок имеет правильную форму и удобный подъезд к участку. Промышленное назначение под объекты IV-V класса. Участок и здание оформлены в собственность. Лoкaция: - Лeнингpадскaя oблacть, Лoмoнoсовcкий райoн, ул. Мaгиcтpaльнaя, 25 - 3 км. oт КAД Характеристики: - 2 этажа: 1 этаж - производственно-бытовая часть, 2 этаж - офисная часть - Производственная часть: 1011 кв.м. ( 18х56 м) - Офисно - бытовая: 476 кв.м. - Электричество - 150 кВт. ( ТП на участке). - Отопление от собственной котельной. - Вода скважина. - Канализация локальная - проточный септик. - Разведена система вентиляции. - Ворота роллетные DoorHan - 3 шт. - Полы обеспыленные. - Каркас обшит сэндвич панелями толщиной 150 мм по стенам и 150 мм по кровле с наполнением из минеральной ваты. - Высота потолка до конька 7,7 м., рабочая высота 5,2 м. - Свободная планировка без колонн в производственной части. - Офисные помещения на 2 этаже. - Забор по периметру участка с автоматическими воротами. - Удобный подъезд для Фур. - Доступ - 24 / 7. - По границе участка проходит дренажная канава хорошо осушающая участок. - Зимой дороги чистятся силами управляющей компании. - Рядом остановка общественного транспорта ( автобус до ст. метро Пр. Ветеранов). Категория земель: Земли промышленного назначения. IV-V класс опасности. Для размещения промышленных объектов. Земли промышленности, энергетики, транспорта, связи, радиовещания, телевидения, информатики, земли для обеспечения космической деятельности, земли обороны, безопасности и земли иного специального назначения.
lock

Войдите или зарегистрируйтесь
для просмотра информации

Просматривайте условия сделки и всю информацию об объекте
Сохраняйте фильтры в поиске и не вводите заново
Доступ к избранному с любого устройства
Неограниченное добавление в избранное
Позвоните автору
Вам ответят на все вопросы
Остались вопросы по объявлению?
Позвоните владельцу объявления и уточните необходимую информацию.
  • Инфраструктура
  • Похожие рядом
  • Год постройки2023
  • Общая площадь1 487 м²
Автономное отопление
Помощь надёжных риелторов
Риелтор партнёр Циан поможет купить или продать любую недвижимость
Суперагент
115 000 000 ₽
1 535 779 $
1 310 137
Цена за метр
77 337 ₽
Налог
НДС включен: 20 737 704 ₽
Агентство недвижимости
На Циан
7 лет
Объектов в работе
34
Риелтор
Суперагент