Мы используем куки-файлы. Соглашение об использовании
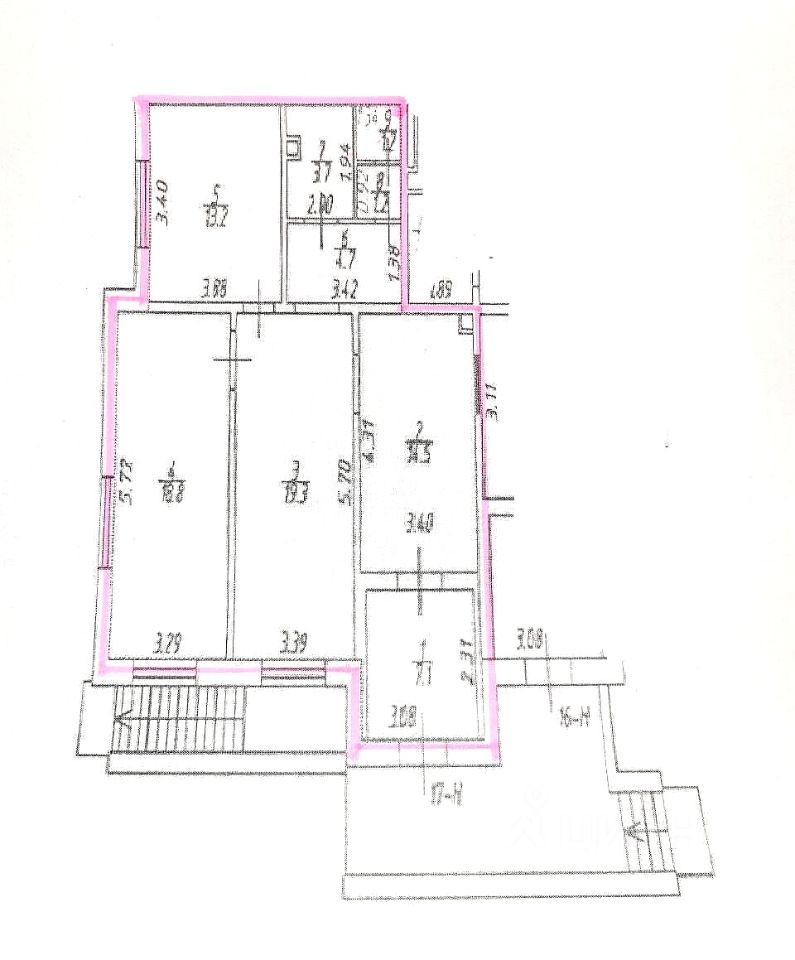
Помещение свободного назначения, 83,6 м²

Продается помещение свободного назначения, 83,6 м²

Площадь83,6 м²
Этаж1 из 17
Отчёт о привлекательности объектаУзнайте, насколько помещение и район подходят для вашего бизнеса
Что входит в отчёт
  • Охват населения
  • Пешеходный трафик
  • Автомобильный трафик
  • Средний бюджет семьи по району
  • Арендные ставки рядом
  • Точки притяжения
  • Конкуренты в радиусе 1 км
  • Рекомендации по выбору места для бизнеса
Продажа коммерческого помещения 83.7 м² (Южное шоссе / метро Проспект Славы) Возможен торг Объект в отличном состоянии, полностью готов к использованию. Идеальные вводные для инвестора или собственника бизнеса. Параметры объекта: . Площадь: 83.7 кв.м. Локация: Первая линия жилого массива, высокий трафик. Вход: Отдельная группа с крыльцом, оборудован подъемником. Технические характеристики: . Электросети: 21.08 кВт (с возможностью увеличения). Инженерия: центральные коммуникации (водоснабжение, канализация, теплоснабжение, телефон). отопительные трубы ( помимо радиаторов) проходят под полом. Системы: приточная вентиляция (2 отвода), кондиционирование, ОПС. Отделка: Качественный ремонт (пол - керамогранит, стены - обои под покраску, потолок - плитка офисная). Санузел в плитке, инсталляция. Юридические и коммерческие условия: .Собственность: Единоличная, с момента сдачи дома (ДДУ). Обременения: Помещение сдано в аренду. Арендаторы уведомлены о продаже и готовы сотрудничать с новым владельцем (сохранение доходности). При необходимости могут съехать. Оплата: Возможна рассрочка от продавца. Рекомендуемые виды деятельности: Медицина/косметология (студия коррекции фигуры, стоматология, лаборатория), сфера услуг (ателье, спа), творчество (керамическая мастерская), образование (детский центр), офис, ретейл (цветы). Показ: По запросу, в удобное для вас время по предварительной договоренности. На все вопросы отвечу по телефону.
lock

Войдите или зарегистрируйтесь
для просмотра информации

Просматривайте условия сделки и всю информацию об объекте
Сохраняйте фильтры в поиске и не вводите заново
Доступ к избранному с любого устройства
Неограниченное добавление в избранное
Позвоните автору
Вам ответят на все вопросы
Остались вопросы по объявлению?
Позвоните владельцу объявления и уточните необходимую информацию.
  • Инфраструктура
  • Похожие рядом
  • Общая площадь83,6 м²
Приточная вентиляция
Местное кондиционирование
Центральное отопление
Сигнализация
Помощь надёжных риелторов
Риелтор партнёр Циан поможет купить или продать любую недвижимость
РиелторОлеся Митрофанова
Суперагент
  • 3,0・3
  • 6 лет 2 месяца на Циане
  • 2 объявления
  • 23 500 000 ₽
    314 166 $
    265 109
    Цена за метр
    281 101 ₽
    Налог
    НДС включен: 4 237 704 ₽
    РиелторОлеся Митрофанова
    Суперагент