Мы используем куки-файлы. Соглашение об использовании
Площадь1 494,6 м²
Этажность3
Отчёт о привлекательности объектаУзнайте, насколько помещение и район подходят для вашего бизнеса
Что входит в отчёт
  • Охват населения
  • Пешеходный трафик
  • Автомобильный трафик
  • Средний бюджет семьи по району
  • Арендные ставки рядом
  • Точки притяжения
  • Конкуренты в радиусе 1 км
  • Рекомендации по выбору места для бизнеса
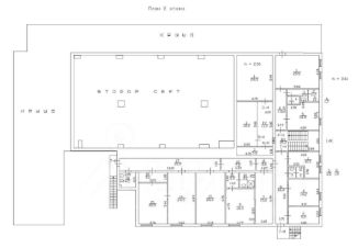
Санкт-Петербург, Мельничная улица Нежилое здание: Производственно -офисное здание Участок: Земли населенных пунктов Промышленного назначения ОБЪЕКТ: нежилое здание общей площадью 1494.6 метров. 3 этажа 1 этаж- производственные и складские помещения 2-3 этажы- офисные помещения Здание полностью готово к эксплуатации. Оборудовано помещениями для персонала и сотрудников. раздевалки, душевые, столовая и др. Кондиционеры, кабинет руководства. Переговорные. Закрытая территория, есть зона парковки для легковых авто, зоны погрузки-разгрузки грузового транспорта. На территории есть несколько временных подсобных помещений, которые можно использовать под хранение или размещение рабочих. Коммуникации: -центральное водоснабжение -центральная канализация -центральное газоснабжение -отопление автономное, 3 газовых котла по 100 Квт каждый - электричество 94 Квт -системы вентиляции Земельный участок 2160 кв. м., земли населенных пунктов, разрешенное использование: для размещения промышленных объектов. РАСПОЛОЖЕНИЕ: здание расположено на стыке Центрального и Невского районов, удобная логистика и развитая инфраструктура, до метро площадь Александра Невского 20 минут пешком. УСЛОВИЯ И ДОКУМЕНТЫ: собственность физического лица, документы готовы к сделке. Здание свободно и готово к передач новому владельцу в короткие сроки. Показы по предварительной договоренности.
lock

Войдите или зарегистрируйтесь
для просмотра информации

Просматривайте условия сделки и всю информацию об объекте
Сохраняйте фильтры в поиске и не вводите заново
Доступ к избранному с любого устройства
Неограниченное добавление в избранное
Позвоните автору
Вам ответят на все вопросы
Остались вопросы по объявлению?
Позвоните владельцу объявления и уточните необходимую информацию.
  • Инфраструктура
  • Похожие рядом
Приточная вентиляция
Местное кондиционирование
Автономное отопление
Гидрантная система пожаротушения
Помощь надёжных риелторов
Риелтор партнёр Циан поможет купить или продать любую недвижимость
149 000 000 ₽
2 037 538 $
1 749 176
Цена за метр
99 693 ₽
Налог
УСН
Агентство недвижимости
Документы проверены
На Циан
7 лет
Объектов в работе
31
5,0・1