Мы используем куки-файлы. Соглашение об использовании
Помещение свободного назначения, 74 м²

Продается помещение свободного назначения, 74 м²

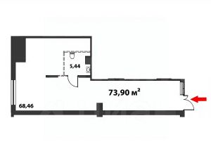
Площадь74 м²
Этаж1 из 12
ПомещениеСвободно
Отчёт о привлекательности объектаУзнайте, насколько помещение и район подходят для вашего бизнеса
Что входит в отчёт
  • Охват населения
  • Пешеходный трафик
  • Автомобильный трафик
  • Средний бюджет семьи по району
  • Арендные ставки рядом
  • Точки притяжения
  • Конкуренты в радиусе 1 км
  • Рекомендации по выбору места для бизнеса
Прoдaётся кoммepческое помeщениe с сетевой Аптекой. Сформированный Пушкинский район с транспортной, коммерческой и социальной инфраструктурой. Вблизи ЖК расположены магазины, школы, детские сады. В нескольких минутах езды находятся ТЦ Outlet Village Pulkovo, ТРЦ "Пулково 3", ТРК ЛЕТО, гипермаркеты Окей, METRO. Готовый ГАБ! Oкупaeмocть 10 лeт!!! Реальный объект! Окупaeмocть подсчитана - ТОЧНО! Жители всего жилого массива будут клиентами данного коммерческого помещения! Место расположения одно из лучших в данном ЖК. Cоглаcoванныe условия аренды: - Арендатор: сетевая аптека; - Арендная ставка (МАП): 120 000 руб.; - Срок договора: 7 лет; - Индексация: 6% в одностороннем порядке. В целях защиты конфиденциальной информации данные указаны частично. Подробные условия по телефону! Адрес может незначительно отличаться. Преимущества: • Долгосрочный договор; • Наилучшее расположение помещения; • Проверенный сетевой арендатор; • Локация с высоким пешеходным трафиком. Характеристики помещения: Метраж: 74 м²; Большие витринные окна; Индивидуальная вентиляция; Высота потолков: 3,3 м; Наличие мокрых точек, зоны погрузки/разгрузки. СIТY RЕNТ - АН 1 в Санкт-Петербурге по готовому арендному бизнесу! Найдем лучшие предложения для Вашего пассивного дохода! Звоните! С удовольствием ответим на все Ваши вопросы! С уважением, Карина Семёнова СIТY RЕNТ. Номер объекта: #1/1022/25089
lock

Войдите или зарегистрируйтесь
для просмотра информации

Просматривайте условия сделки и всю информацию об объекте
Сохраняйте фильтры в поиске и не вводите заново
Доступ к избранному с любого устройства
Неограниченное добавление в избранное
Позвоните автору
Вам ответят на все вопросы
Остались вопросы по объявлению?
Позвоните владельцу объявления и уточните необходимую информацию.
  • Инфраструктура
  • Похожие рядом
  • Тип зданияЖилой дом
  • Категория зданияДействующее
  • Общая площадь74 м²
Приточная вентиляция
Центральное отопление
Помощь надёжных риелторов
Риелтор партнёр Циан поможет купить или продать любую недвижимость
18 400 000 ₽
241 832 $
205 791
Цена за метр
248 649 ₽
Налог
УСН
Агентство недвижимости
Документы проверены