Мы используем куки-файлы. Соглашение об использовании
Онлайн-бронирование
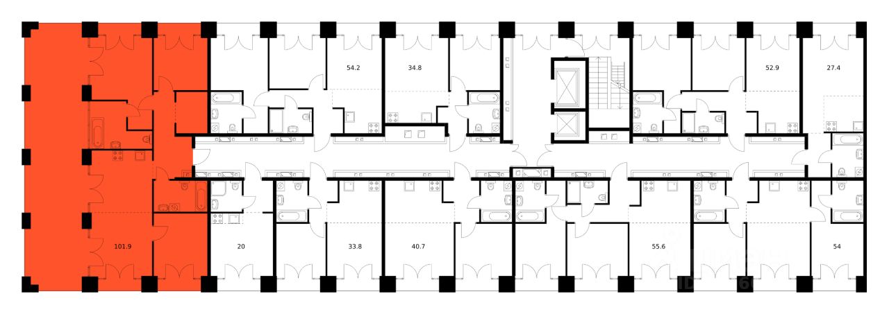
Общая площадь103,5 м²
Жилая площадь35,4 м²
Площадь кухни25,5 м²
Этаж9 из 9
Год сдачи2025
ДомСдан
ОтделкаБез отделки
Продаётся 3-комн. квартира площадью 103,5 кв.м на 9 этаже 9 этажного дома (Корпус 2.2, Секция 13) проекта ПИК Лермонтовский 54. Светлый просторный подъезд на уровне земли, функциональная планировка, большие окна, без отделки. "Лермонтовский 54" находится в центре Санкт-Петербурга на набережной Обводного канала, в 5 минутах пешком от метро "Балтийская". Здесь будут квартиры с окнами в пол, высокими потолками и террасами. Жилой квартал находится в центре Санкт-Петербурга, в Адмиралтейском районе, на набережной Обводного канала. В 5 минутах пешком - станция метро "Балтийская". До Невского проспекта на автомобиле ехать 8 минут, до Московского проспекта - всего 2 минуты. Необычные фасады "Лермонтовского 54" напоминают о промышленной архитектуре, которая была популярна в Санкт-Петербурге в конце XIX и начале XX века. Материал отделки - прочный кирпич, который прослужит до 100 лет. А благодаря системе чиллер-фанкойл на фасадах не будет блоков кондиционеров - всё охлаждение происходит внутри здания. В "Лермонтовском" возводятся дома высотой от 7 до 9 этажей с небольшим количеством квартир: на этаже может быть всего две квартиры. Во дворах будут закрытые парки с детскими площадками и местами для отдыха, а на подземном этаже - паркинг с удобной навигацией. Между домами протянется пешеходный бульвар для прогулок и отдыха, для велосипедистов предусмотрены специальные дорожки и парковки. В 2024 году в "Лермонтовском 54" открылся лицей на 1000 мест. Он разместился в здании 1824 года - раньше здесь было Николаевское кавалерийское училище. Во всех квартирах будут трёхметровые потолки и окна в пол. На первых этажах откроются магазины, кафе и другие сервисы. Со стороны набережной в домах, которые признаны объектами культурного наследия, мы разместим общественные пространства. Недалеко от "Лермонтовского 54" находится Юсуповский дворец, парк Екатерингоф, на машине можно доехать до острова Новая Голландия и Мариинского театра. Рядом работают школы, детские сады, торговые центры и гипермаркеты. Артикуль 921721 (ООО "СПЕЦИАЛИЗИРОВАННЫЙ ЗАСТРОЙЩИК "АЛЬМАНДИН")

О квартире

Тип жилья

Новостройка

Общая площадь

103,5 м²

Жилая площадь

35,4 м²

Площадь кухни

25,5 м²

Высота потолков

3 м

Санузел

2 совмещенных

Балкон/лоджия

4 лоджии, 1 балкон

Вид из окон

На улицу и двор

Отделка

Без отделки

О доме

Количество лифтов

1 пассажирский, 1 грузовой

Тип дома

Монолитный

Парковка

Подземная

Понравилась квартира — узнайте о ней больше

Застройщик ответит на все вопросы

Отделка в ЖК

  • Предчистовая
  • Без отделки

О ЖК «Лермонтовский 54»

  • Сдача комплекса
    Сдан
  • Застройщик
    ПИК
  • Класс
    Бизнес
  • Тип дома
    Монолитный
  • Парковка
    Подземная, гостевая
  • Отделка
    Без отделки, предчистовая
  • Тип комплекса
    Жилой комплекс
Похоже на то, что вы ищете?

Особенности жилого комплекса

  • Отделка

  • Парковка

  • Внутренний двор

  • Архитектура

  • Входная группа

  • Лифт

Подробнее о жилом комплексе

Акции в ЖК «Лермонтовский 54»

Узнайте про персональные условия и дополнительные скидки при покупке квартиры у застройщика

Рассрочка на 6 месяцев

Рассрочка на 3 месяца

Рассрочка на 12 месяцев

Ипотечный калькулятор
  • Базовая
  • Семейная
  • ИТ-ипотека
  • 20%
  • 30%
  • 40%
  • 50%
лет
  • 10 лет
  • 20 лет
  • 30 лет
Загружаем предложения от застройщика и банков
Корпус проверен наш.дом.рф
Обновлено 2 апреля 2026
  • Нет в реестре проблемных объектов
  • Застройщик не банкрот

Ещё квартиры в жилом комплексе

164 квартиры в продаже · Сдан
ЗастройщикПИК
Год основания: 1994
Строится: 296 домов в 61 ЖК
63 404 100 ₽
Цена за метр
612 600 ₽/м²
Условия сделки
долевое участие (214-ФЗ)