Мы используем куки-файлы. Соглашение об использовании

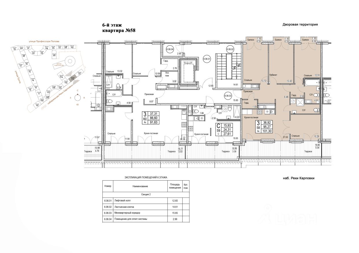
Продается 3-х к. кв. 101,3 кв. м.

Общая площадь101,3 м²
Жилая площадь36,9 м²
Площадь кухни21,5 м²
Этаж6 из 6
Год сдачи2029
ДомНе сдан
ОтделкаБез отделки
В продаже квартира в строящемся ЖК ID Рetrogradskаyа Комнат: 3 Этаж: 6/6 Секция: 2 Площадь общая: 101,3 кв. м. Площадь жилая: 36,92 кв. м. Балкон: 3 балкона, терраса Номер: 58 Продается уникальная квартира с потрясающими видовыми характеристиками! Из кухни выход на террасу с видом на благоустроенную набережную тихой реки Карповки и Иоанновский монастырь. У каждой комнаты есть свой балкон, выходящий во двор. Квартира передается без отделки, что позволяет воплотить свои дизайнерские идеи и создать уникальный интерьер. Во всех квартирах потолки 3 м и панорамные окна высотой 2,8 м. В каждой секции и на каждом этаже спроектированы помещения для установки кондиционеров. Предусмотрены грузовые лифты, на первых этажах организованы места для хранения детских колясок. Отделка входных групп и общих зон выполнена по авторскому дизайну. ______________________________________________ Срок сдачи 2029 г. Квартира продается по переуступке. Клубный квартал состоит из 29 секций в 6 этажей, располагается в Петроградском районе Санкт-Петербурга — между улицей профессора Попова и набережной реки Карповка. Одной из главных достопримечательностей выступает Иоанновский женский монастырь. Окна многих квартир выходят на живописную реку Карповку. Проектом предусмотрено благоустройство набережной, также застройщик отреставрирует артезианскую скважину императорских времён. Комплекс возводится в пешей доступности от трех станций метро — Петроградская, Чкаловская и Чёрная речка. В шаговой доступности находятся магазины, салоны красоты, медицинские центры, рестораны и сервисы. На территории запланирован детский сад на 100 мест и начальная школа на 200 мест. Проектом предусмотрен подземный паркинг, доступ в который осуществляется на лифте с жилых этажей. Гостевые парковки вынесены за периметр домов. Также на территории паркинга предусмотрены индивидуальные кладовые для хранения вещей жителей. Благодаря мосту Бетанкура и удобным выездам на главные транспортные магистрали (съезды на Уральскую улицу, набережную Макарова, ЗСД, Морскую набережную и проспект Кима), добраться до любой точки города и аэропорта Пулково комфортно и быстро.
Позвоните автору
Вам ответят на все вопросы

О квартире

Тип жилья

Новостройка

Общая площадь

101,3 м²

Жилая площадь

36,9 м²

Площадь кухни

21,5 м²

Санузел

1 совмещенный, 1 раздельный

Балкон/лоджия

4 балкона

Вид из окон

На улицу

О доме

Тип дома

Монолитно-кирпичный

Парковка

Подземная

Расположение

Ипотечный калькулятор
  • Базовая
  • Семейная
  • ІТ-ипотека
  • 20.1%
  • 30%
  • 40%
  • 50%
лет
  • 10 лет
  • 20 лет
  • 30 лет
Загружаем предложения от застройщика и банков
Автор объявленияID 129574809
  • Документы проверены
  • 8 месяцев на ЦИАН
  • 49 объявлений
  • 99 274 000 ₽
    Цена за метр
    980 000 ₽/м²
    Условия сделки
    переуступка
    Ипотека
    возможна
    Автор объявленияID 129574809
    Документы проверены