Мы используем куки-файлы. Соглашение об использовании
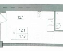
Апартаменты-студия, 22,2 м²
С мебелью
Общая площадь22,2 м²
Жилая площадь12,1 м²
Этаж6 из 13
Год постройки2024
Объявление снято с публикации, поищите ещё что-нибудь

О квартире

Тип жилья

Вторичка / Апартаменты

Общая площадь

22,2 м²

Жилая площадь

12,1 м²

Санузел

1 совмещенный

Балкон/лоджия

1 лоджия

Ремонт

Косметический

Продаётся с мебелью

Да

О доме

Количество лифтов

1 пассажирский, 1 грузовой

Тип дома

Монолитно-кирпичный

12 500 000 ₽
Эксперт от ЦианаПомощь с поиском и сделкой
Цена за метр
563 063 ₽/м²
Ипотека
возможна
Агентство недвижимости
Документы проверены