Мы используем куки-файлы. Соглашение об использовании
С мебелью
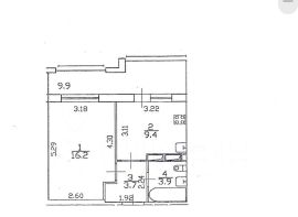
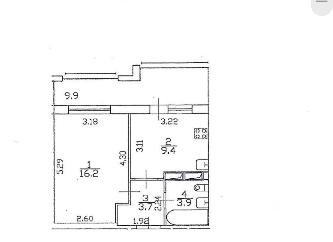
Общая площадь33,2 м²
Жилая площадь16,2 м²
Площадь кухни9,4 м²
Этаж5 из 24
Продается отличная однокомнатная квартира с евроремонтом в Санкт-Петербурге на Московском проспекте. Площадь квартиры составляет 33,2 кв. м, жилая площадь 16,2 кв. м, а кухня — 9,4 кв. м. Расположена на 5 этаже 24-этажного дома, окна выходят на улицу. До станции метро "Московская" всего 9 минут пешком, что делает это предложение особенно привлекательным. Квартира с современным евроремонтом, поэтому можно сразу заехать и жить. Просторная кухня позволит не только готовить, но и принимать гостей. Санузел совмещенный, в квартире есть лоджия, где можно организовать зону отдыха. Дом новый и ухоженный, есть как пассажирский, так и грузовой лифты, а подземная парковка избавит вас от проблем с поиском места для автомобиля. Район тихий и безопасный, что особенно важно для комфортной жизни в большом городе. Рядом с домом есть школы, детские сады и магазины, поэтому можно не переживать о доступности инфраструктуры. Близость к метро позволяет быстро добраться до центра города и других ключевых районов. Отличная транспортная доступность делает этот вариант еще более привлекательным. Квартира продается по договору купли-продажи, возможна ипотека. Все документы готовы к сделке. Звоните, чтобы уточнить детали и договориться о просмотре. Не упустите возможность стать владельцем этой замечательной квартиры!
Позвоните автору
Вам ответят на все вопросы

О квартире

Тип жилья

Вторичка

Общая площадь

33,2 м²

Жилая площадь

16,2 м²

Площадь кухни

9,4 м²

Санузел

1 совмещенный

Балкон/лоджия

1 лоджия

Ремонт

Евроремонт

Продаётся с мебелью

Да

О доме

Количество лифтов

1 пассажирский, 1 грузовой

Парковка

Подземная

Спросите умного помощника
Получите экспертное мнение о жилье

Расположение

Ипотечный калькулятор
  • Базовая
  • Семейная
  • ИТ-ипотека
  • 20%
  • 30%
  • 40%
  • 50%
лет
  • 10 лет
  • 20 лет
  • 30 лет
Загружаем предложения от застройщика и банков
16 200 000 ₽
Эксперт от ЦианаПомощь с поиском и гарантия безопасной сделки
Цена за метр
487 952 ₽/м²
Условия сделки
альтернатива
Ипотека
возможна
Агентство недвижимости
Риелтор
Суперагент