Мы используем куки-файлы. Соглашение об использовании
Только на Циан
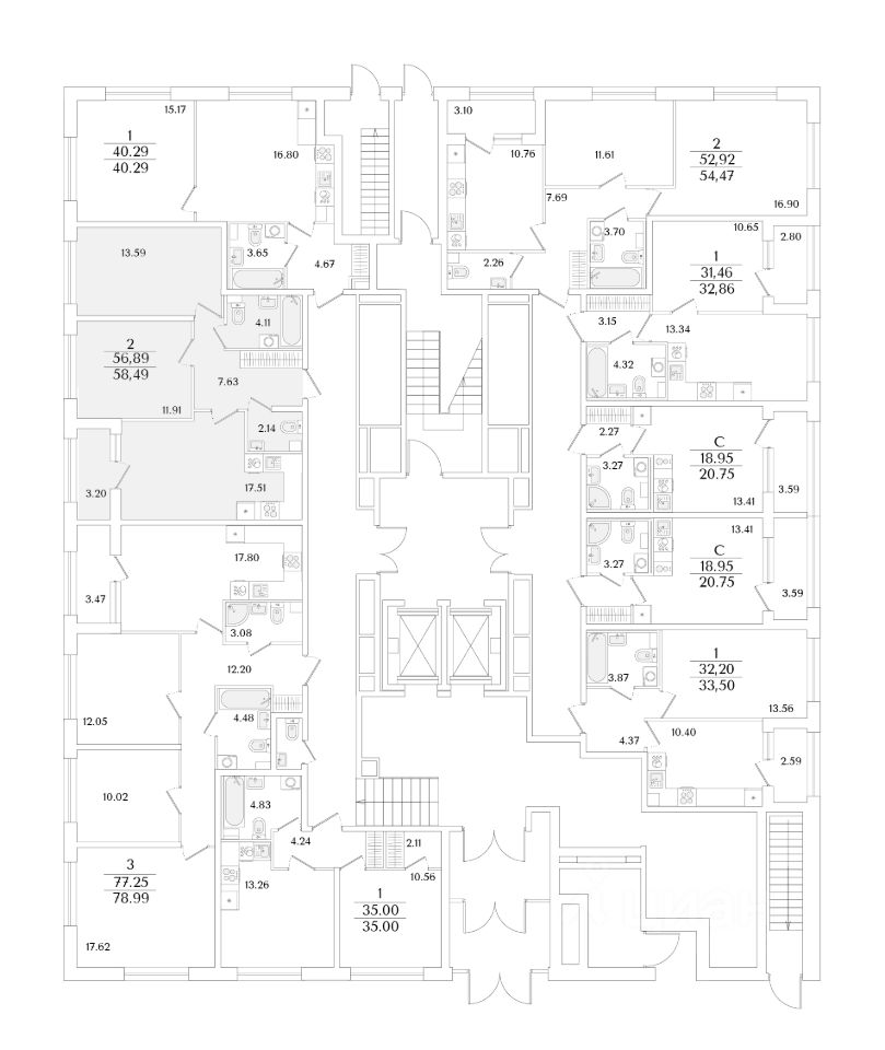
Общая площадь58,49 м²
Жилая площадь25,5 м²
Площадь кухни17,5 м²
Этаж1 из 17
Год сдачи2029
ДомНе сдан
ОтделкаЧистовая
Выгодное предложение от застройщика: * Семейная ипотека 2.2% * Просторные планировки для семьи * Детский сад и школа * 15 минут от метро "Лесная" * Двор-парк с беговым маршрутом * Подземный паркинг со спуском на лифте * Дизайнерские лобби с арт-объектом Продаётся 2к.кв. в ЖК Аурум от застройщика Группа компаний "РСТИ". Квартира находится в 17 этажном доме, в Аурум - Корпус 1(С1,С2,С3) на 1 этаже. Общая площадь квартиры 58,49 кв.м. "Аурум" - это современное, яркое и функциональное пространство, где архитектура объединена с комфортом и эстетикой. Проект создан в архитектурной мастерской Сергея Цыцина "АМЦ-Проект". Его ключевая идея — в создании стильного и заметного образа, который станет доминантой района и будет притягивать взгляды. Архитектурное решение комплекса выделяется яркими фасадами с эффектным золотым обрамлением окон. Контрастное сочетание темных и светлых элементов создает запоминающийся облик, а разновысотные дома от 7 до 17 этажей придают динамику кварталу. Часть зданий выполнена в форме башен, а между ними оставлено очень много простора и воздуха. Разнообразие планировок включает студии и квартиры с 1-3 комнатами. Каждая квартира оснащена гардеробными или удобными системами хранения в прихожей. Покупатели могут выбрать варианты с чистовой отделкой, предчистовой отделкой или без отделки. Ввод комплекса в эксплуатацию запланирован на первый квартал 2030 года. Подогреваемый подземный паркинг "Аурума" с кладовыми создан для комфортного и безопасного хранения автомобилей и сезонных вещей жителей. Закрытый внутренний двор с креативным пространством, современным озеленением, выразительной геопластикой, большим игровым центром, беговым маршрутом станет идеальным местом для игр, отдыха, прогулок и общения. Центральным элементом является детская площадка с веревочным парком. Расположение комплекса обеспечивает удобный доступ к крупным магистралям Калиниского района: проспекту Маршала Блюхера, Кондратьевскому, Пискаревскому и Полюстровскому проспектам. Около 15-20 минут на транспорте — и вы на станциях метро "Лесная" и "Площадь Ленина". В будущем запланировано строительство новых объектов, улучшающих транспортную доступность: трасса "М-7", станции метро "Арсенальная", "Площадь Калинина" и "Полюстровский проспект-1".
Позвоните автору
Вам ответят на все вопросы

О квартире

Тип жилья

Новостройка

Общая площадь

58,49 м²

Жилая площадь

25,5 м²

Площадь кухни

17,5 м²

Высота потолков

2,74 м

Санузел

1 совмещенный

Отделка

Чистовая

О доме

Количество лифтов

6 пассажирских

Тип дома

Монолитный

Парковка

Открытая

Пандус

Есть

Расположение

Ипотечный калькулятор
  • Базовая
  • Семейная
  • ИТ-ипотека
  • 20%
  • 30%
  • 40%
  • 50%
лет
  • 10 лет
  • 20 лет
  • 30 лет
Загружаем предложения от застройщика и банков
Помощь риелтора
Проверенный риелтор поможет купить или продать квартиру
Агентство недвижимости
Росстройинвест
  • 6 лет 1 месяц на Циане
  • 545 объявлений
  • 20 208 350 ₽
    Цена за метр
    345 501 ₽/м²
    Условия сделки
    долевое участие (214-ФЗ)
    Агентство недвижимости
    Росстройинвест