Мы используем куки-файлы. Соглашение об использовании
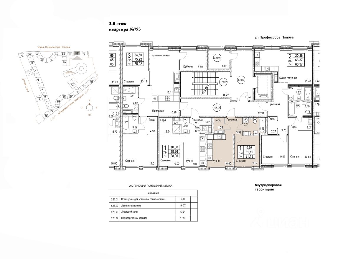
Общая площадь31,19 м²
Жилая площадь10 м²
Этаж3 из 6
Год сдачи2029
ДомНе сдан
ОтделкаБез отделки
Объявление снято с публикации, поищите ещё что-нибудь

О квартире

Тип жилья

Новостройка

Общая площадь

31,19 м²

Жилая площадь

10 м²

Санузел

1 совмещенный

Вид из окон

Во двор

О доме

Тип дома

Монолитно-кирпичный

Парковка

Подземная

18 651 620 ₽
Цена за метр
598 000 ₽/м²
Условия сделки
переуступка
Ипотека
возможна
Автор объявленияID 129574809
Документы проверены