Мы используем куки-файлы. Соглашение об использовании
Проверено в Росреестре
Общая площадь90 м²
Жилая площадь61 м²
Площадь кухни13,5 м²
Этаж2 из 10
Год постройки2003
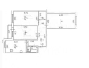
Просторная трехкомнатная квартира, комнаты изолированные: 24, 18, 17. Квартира расположена внутри квартала, тихое место, рядом школа и детский сад. Идеальное место для семьи с детьми. Ранее сдавалась. В настоящий момент в комнатах поклеены новые обои, коридор и кухня подготовлены под поклейку обоев, у Вас есть возможность оформить прихожую и кухню по своему вкусу. Двери - массив, зашкурены, подготовлены под покраску. Ванная и туалет в порядке - плитка в отличном состоянии, как на фото. Окна - двухкамерные стеклопакеты. Окна выходят во двор, на детские площадки. Лоджия с отделкой, застеклена стеклопакетами. я - единственный собственник, квартиру покупала у застройщика в 2003 году. Квартира продается впервые. Готова к продаже, никто не прописан. Подходит под ипотеку, можно покупать через агентство, нотариуса, через юридическую компанию - на усмотрение покупателя.
Позвоните автору
Вам ответят на все вопросы

О квартире

Тип жилья

Вторичка

Общая площадь

90 м²

Жилая площадь

61 м²

Площадь кухни

13,5 м²

Высота потолков

2,55 м

Санузел

1 раздельный

Балкон/лоджия

1 лоджия

Ремонт

Косметический

О доме

Год постройки

2003

Количество лифтов

1 пассажирский

Тип перекрытий

Железобетонные

Подъезды

6

Парковка

Наземная

Отопление

Центральное

Аварийность

Нет

Спросите умного помощника
Получите экспертное мнение о жилье
Информация из Росреестра
Обременения
Нет
Площадь
90 м²
Этаж
2
Собственников
2
Кадастровый номер
78:15:0843301:***

Расположение

Ипотечный калькулятор
  • Базовая
  • Семейная
  • ИТ-ипотека
  • 20%
  • 30%
  • 40%
  • 50%
лет
  • 10 лет
  • 20 лет
  • 30 лет
Загружаем предложения от застройщика и банков
СобственникID 90470378
  • Предоставил паспорт
19 200 000 ₽
Эксперт от ЦианаПомощь с поиском и сделкой
Цена за метр
213 333 ₽/м²
Условия сделки
свободная продажа
Ипотека
возможна
СобственникID 90470378
  • Предоставил паспорт