Мы используем куки-файлы. Соглашение об использовании
Только на Циан
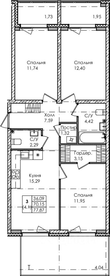
Общая площадь74 м²
Жилая площадь36,1 м²
Площадь кухни15,3 м²
Этаж1 из 4
Год сдачи2025
ДомСдан
ОтделкаБез отделки
Приватный малоэтажный комплекс в утопающем зелени Лисьем носу. Это сочетание комфортной загородной жизни и городской. По Приморскому шоссе вы можете быстро добраться до новой точки притяжения Лахта центра. В пешей доступности жд станция Лисий Нос, 3 остановки до Лахта центра , 5 до станции метро Старая Деревня. Рядом выезд на КАД. Лисино это город-парк. Комплексное освоение территории со всей инфраструктурой внутри застройки. В составе комплекса будет 4 детских сада и 2 школы, поликлиника, МФЦ, ФОК с бассейном и культурный центр. Квартира находится на первом этаже и вы можете воплотить в реальность любые панировочные решения. Личная терраса 14.5 м2 и две лоджии, два санузла и гардеробная. Окна выходят на разные стороны. Высокие потолки 2.75м. Всего 5 квартир на этаже. Огромным преимуществом является большое количество зелёных территории вокруг комплекса. В пешей доступности берег Финского залива. Квартира с предчистовой отделкой. Вода сразу будет подаваться питьевая. Домофоны с бесконтактный доступом. Увеличенные оконные проемы бережно будут впитывать редкие лучи солнца Санкт-Петербурга. Счетчики умные с дистанционной передачей показании. Закрытый двор с видеонаблюдением. На остальные вопросы с удовольствием отвечу по телефону.
Позвоните автору
Вам ответят на все вопросы

О квартире

Тип жилья

Новостройка

Общая площадь

74 м²

Жилая площадь

36,1 м²

Площадь кухни

15,3 м²

Санузел

1 раздельный

Балкон/лоджия

2 лоджии

Вид из окон

На улицу и двор

Расположение

Ипотечный калькулятор
  • Базовая
  • Семейная
  • ІТ-ипотека
  • 20%
  • 30%
  • 40%
  • 50%
лет
  • 10 лет
  • 20 лет
  • 30 лет
Загружаем предложения от застройщика и банков
Помощь риелтора
Проверенный риелтор поможет купить или продать квартиру
Автор объявленияДенис Коденко
  • 4,7・54
  • Документы проверены
  • 8 лет 4 месяца на Циане
  • 16 объявлений
  • 19 500 000 ₽
    Цена за метр
    263 514 ₽/м²
    Условия сделки
    переуступка
    Ипотека
    возможна
    Автор объявленияДенис Коденко
    4,7・54
    Документы проверены