Мы используем куки-файлы. Соглашение об использовании
Онлайн-бронирование
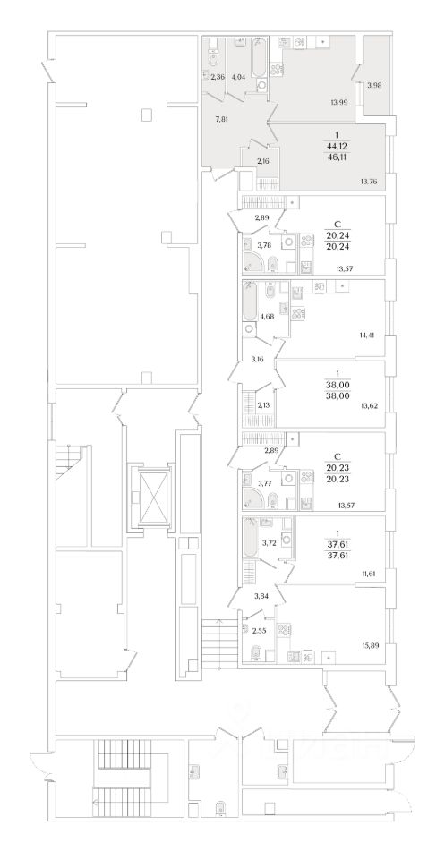
Общая площадь46,11 м²
Жилая площадь13,8 м²
Площадь кухни14 м²
Этаж1 из 9
Год сдачи2028
ДомНе сдан
ОтделкаБез отделки
Продаётся 1к.кв. в ЖК Кинопарк от застройщика Группа компаний "РСТИ" (Росстройинвест). Квартира находится в 9 этажном доме, в Очередь 2, Корпус 1 на 1 этаже. Общая площадь квартиры 46,11 кв.м. "Кинопарк" — современный жилой комплекс, в котором главную роль играете Вы! Здесь возможен любой желанный сценарий жизни. Продуманные планировки, закрытые уютные дворы, развитая инфраструктура квартала — всё это обеспечит высокий уровень комфорта и будет вдохновлять на новые свершения. "Кинопарк" у парка "Новознаменка" возводится на бывшей территории "Ленфильма". Тема кино найдет отражение в отделке мест общего пользования и благоустройстве территории. Инфраструктура Жилой комплекс расположен в обжитой части Красносельского района рядом есть магазины, детские сады, школы и другая необходимая инфраструктура. Напротив комплекса находится парк "Новознаменка", в шаговой доступности еще четыре парка и два сквера.

О квартире

Тип жилья

Новостройка

Общая площадь

46,11 м²

Жилая площадь

13,8 м²

Площадь кухни

14 м²

Высота потолков

2,75 м

Санузел

1 раздельный

Балкон/лоджия

1 лоджия

Вид из окон

На улицу

Отделка

Без отделки

О доме

Количество лифтов

14 пассажирских

Тип дома

Монолитный

Пандус

Есть

Понравилась квартира — узнайте о ней больше

Застройщик ответит на все вопросы

Варианты отделки в ЖК

  • Чистовая
  • Черновая
  • Без отделки

О ЖК «Кинопарк»

  • Сдача комплекса
    Сдача в 2026—2028
  • Застройщик
    Группа компаний «РСТИ»
  • Класс
    Комфорт
  • Тип дома
    Монолитно-кирпичный, монолитный
  • Парковка
    Подземная, гостевая
  • Отделка
    Без отделки, черновая, чистовая
  • Тип комплекса
    Жилой комплекс
Похоже на то, что вы ищете?

Особенности жилого комплекса

  • Парковка

  • Внутренний двор

  • Парки

  • Архитектура

  • Входная группа

  • Лифт

Подробнее о жилом комплексе

Акции в ЖК «Кинопарк»

Узнайте про персональные условия и дополнительные скидки при покупке квартиры у застройщика
logo

Скидка 18%

Рассрочка с ПВ 10%

Квартира от 25 000 ₽/мес.

Рассрочка 50/50

Рассрочка 30/30/40

logo

Скидка 30 000 руб.

logo

Скидка для иногородних

logo

Скидки до 500 000 рублей

Материнский капитал

Ипотечный калькулятор
  • Базовая
  • Семейная
  • ИТ-ипотека
  • 20%
  • 30%
  • 40%
  • 50%
лет
  • 10 лет
  • 20 лет
  • 30 лет
Загружаем предложения от застройщика и банков
Корпус проверен наш.дом.рф
Обновлено 9 апреля 2026
  • Нет в реестре проблемных объектов
  • Застройщик не банкрот
  • Есть эскроу счёт
  • Актуальные фото стройки

Ещё квартиры в жилом комплексе

495 квартир в продаже · Сдача в 2026—2028
ЗастройщикГруппа компаний «РСТИ»
Год основания: 2001
Строится: 13 домов в 3 ЖК
12 738 386 ₽
Цена за метр
276 261 ₽/м²
Условия сделки
долевое участие (214-ФЗ)