Мы используем куки-файлы. Соглашение об использовании
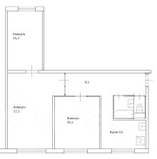
Общая площадь65,3 м²
Жилая площадь42,8 м²
Площадь кухни9,1 м²
Этаж1 из 9
Год постройки1974
Предлагаем к покупке отличный вариант 3-х комнатной квартиры в одном из зеленых и уютных районов. Дом 1974г.постройки, хороший контингент проживающих в доме и в целом в микрорайоне, дружные соседи. Квартира расположена на первом этаже, двусторонняя; теплая и ухоженная, вид во двор, в квартире произведен качественный ремонт. Комнаты смежно-изолированные, правильной, удобной для расстановки мебели, формы Инфраструктура для комфортного проживания вся в наличии-достаточное количество магазинов в пешей доступности, школы и детские сады рядом, почта, аптеки. Для машины всегда найдется свободное место на парковке во дворе. Рядом Удельный парк для прогулок и отдыха, много зеленых зон. Транспортная доступность хорошая- рядом остановка общественного транспорта, метро Пионерская, Комендантский проспект. Собственность болеe 5 лет, один владелец, обременений и перепланировок нет, полная стоимость в договоре, встречная покупка, подходит под любые виды оплаты. Просмотры по договоренности, быстрый выход на сделку.
Позвоните автору
Вам ответят на все вопросы

О квартире

Тип жилья

Вторичка

Общая площадь

65,3 м²

Жилая площадь

42,8 м²

Площадь кухни

9,1 м²

Высота потолков

2,5 м

Санузел

1 раздельный

Ремонт

Косметический

О доме

Год постройки

1974

Количество лифтов

1 пассажирский

Тип дома

Панельный

Тип перекрытий

Железобетонные

Подъезды

9

Парковка

Наземная

Отопление

Центральное

Аварийность

Нет

Газоснабжение

Центральное

Спросите умного помощника
Получите экспертное мнение о жилье

Расположение

Ипотечный калькулятор
  • Базовая
  • Семейная
  • ИТ-ипотека
  • 20%
  • 30%
  • 40%
  • 50%
лет
  • 10 лет
  • 20 лет
  • 30 лет
Загружаем предложения от застройщика и банков
12 850 000 ₽
Эксперт от ЦианаПомощь с поиском и сделкой
Цена за метр
196 784 ₽/м²
Условия сделки
альтернатива
Ипотека
возможна
Агентство недвижимости
Документы проверены