Мы используем куки-файлы. Соглашение об использовании
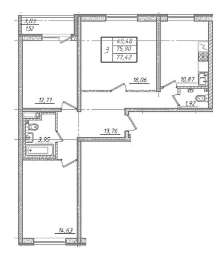
Общая площадь75,9 м²
Жилая площадь45,4 м²
Площадь кухни10,9 м²
Этаж12 из 24
Год постройки2025
ЛУЧШЕЕ ПРЕДЛОЖЕНИЕ В РАЙОНЕ! Просторная и светлая трехкомнатная квартира в новом монолитно-кирпичном доме 2025 года постройки. Продуманная удобная планировка, 11-ти метровая кухня. два санузла - совмещенный и раздельный. Комфортный 12 этаж с шикарными видовыми характеристиками на обе стороны дома (во двор и Ленинский проспект), которые обеспечивает достаточное количество солнечного света в комнатах и на кухне. Отделка от застройщика с возможностью заехать сразу же после регистрации права собственности. Благоустроенная придомовая территория с детской площадкой. Два надземных многоуровневых паркинга примыкающих к дому, наличие парковочных мест во дворе. Динамично развивающийся район с отлично развитой инфраструктурой: в пешей доступности необходимые образовательные (школа в 100 м от подъезда) и медицинские организации, магазины и точки сферы услуг. Для любителей активного отдыха и прогулок в 10 минутах Южно-Приморский парк с прудами, чуть больше времени займет путь к Финскому заливу. В проекте в непосредственной близости открытие станции метро "Улица Доблести". Максимально прозрачная история владения. Квартира оформлена в долевую собственность. Юридическое сопровождение сделки от опытных юристов.
Позвоните автору
Вам ответят на все вопросы

О квартире

Тип жилья

Вторичка

Общая площадь

75,9 м²

Жилая площадь

45,4 м²

Площадь кухни

10,9 м²

Высота потолков

2,5 м

Санузел

1 совмещенный, 1 раздельный

Балкон/лоджия

1 балкон

Вид из окон

На улицу и двор

Ремонт

Евроремонт

О доме

Количество лифтов

2 пассажирских, 1 грузовой

Тип дома

Монолитно-кирпичный

Парковка

Наземная

Спросите умного помощника
Получите экспертное мнение о жилье

Расположение

Ипотечный калькулятор
  • Базовая
  • Семейная
  • ИТ-ипотека
  • 20%
  • 30%
  • 40%
  • 50%
лет
  • 10 лет
  • 20 лет
  • 30 лет
Загружаем предложения от застройщика и банков
14 800 000 ₽
Эксперт от ЦианаПомощь с поиском и гарантия безопасной сделки
Цена за метр
194 993 ₽/м²
Условия сделки
альтернатива
Ипотека
возможна
Агентство недвижимости
Суперагент