Мы используем куки-файлы. Соглашение об использовании
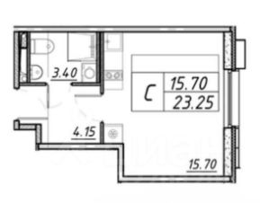
Апартаменты-студия, 23,38 м²
Только на Циан
Общая площадь23,38 м²
Жилая площадь15,7 м²
Площадь кухни3 м²
Этаж13 из 16
Год сдачи2026
ДомНе сдан
ОтделкаЧистовая
Уважаемые покупатели, продаётся уютная студия в ЖК бизнес класса! Апарт-отель представляет собой масштабный архитектурный ансамбль из четырёх 16-этажных башен, в совокупности вмещающих 959 современных апартаментов. Каждое помещение спроектировано с учётом требований к функциональности, эстетике и комфорту — от продуманной планировки до качественных отделочных материалов. В апартаментах AVENUE-APART ПУЛКОВО есть следующие удобства: ресторан, лобби с ресепшеном (круглосуточным), химчистка, прачечная, услуги клининга, доставка продуктов, консьерж-сервис. Территория комплекса огорожена, находится под охраной и оборудована системой видеонаблюдения. Общая площадь студии 23,38м, комната - 15,78м, коридор - 4,2м, санузел - 3,4м. Студия сдаётся с чистовой отделкой, которая включает в себя устройство полов и натяжных потолков, оклейку стен обоями под покраску, установку розеток и выключателей, укладку плитки в санузлах и монтаж сантехники. Также владельцы могут за дополнительную плату заказать услугу по меблировке апартаментов, которая включает в себя и установку техники. Для хранения крупногабаритных и сезонных вещей предусмотрены индивидуальные кладовые. Квартира расположена в 4 корпусе. В окружении сервисных апартаментов находятся торговые центры, парковые зоны, детские сады, школы, разнопрофильные магазины, медицинские учреждения, остановки общественного транспорта. Пешком 8 минут до станции метро Звездная. На машине 10 минут до Пулково, до КАДа - 5 минут.
Позвоните автору
Вам ответят на все вопросы

О квартире

Тип жилья

Новостройка / Апартаменты

Общая площадь

23,38 м²

Жилая площадь

15,7 м²

Площадь кухни

3 м²

Санузел

1 раздельный

О доме

О подъезде

Есть консьерж

Парковка

Подземная

Юридические особенности

Несовершеннолетние собственники

Нет

Материнский капитал при покупке

Не использовался

Расположение

Ипотечный калькулятор
  • Базовая
  • Семейная
  • ИТ-ипотека
  • 20%
  • 30%
  • 40%
  • 50%
лет
  • 10 лет
  • 20 лет
  • 30 лет
Загружаем предложения от застройщика и банков
Помощь риелтора
Проверенный риелтор поможет купить или продать квартиру
6 700 000 ₽
Цена за метр
286 570 ₽/м²
Условия сделки
переуступка
Ипотека
возможна
Агентство недвижимости
Документы проверены
5,0・5