Мы используем куки-файлы. Соглашение об использовании
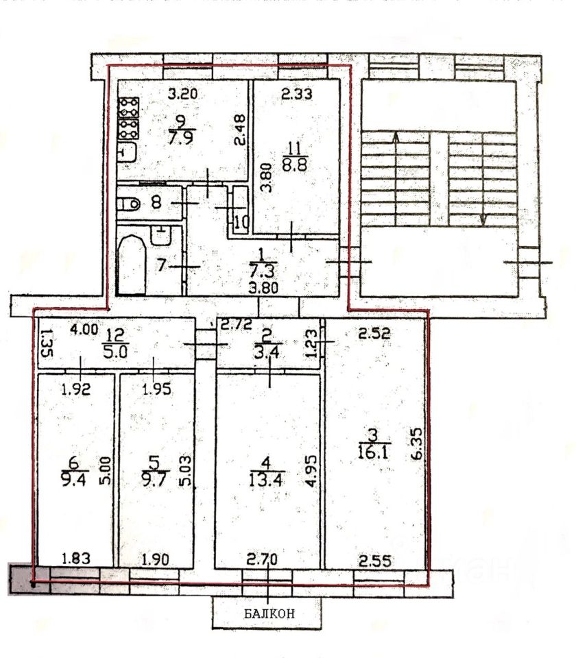
Общая площадь86,5 м²
Площадь кухни9 м²
Этаж4 из 5
Год постройки1917
Продается 5-комнатная квартира в центре Санкт-Петербурга. • •• Отличный вариант как для инвестора, так и для тех, кто хочет жить в самом центре города. Локация - - 5 минут до ст. м. "Балтийская" - 10 минут до ст.м Технологический институт — Рядом Набережная Фонтанки, Троицкий собор, музеи, театры, Vokzal 1853, Гипер Лента, Вокзал. - Историческая архитектура О квартире: - 5 раздельных. комнат, где самая большая 16.1 м2 - Чистая парадная, тихие соседи, на этаже 2 квартиры. Домофон. - закрытый двор для парковки авто - можно подстроить под любые задачи: жить самому, воплотить любое желание по планировке (1 несущая стена). Можно сдавать в аренду долгосрочно или организовать посуточную - центр и транспортная доступность позволяют. Для инвестора: - Центр города - всегда высокий спрос - 5 комнат = можно сдавать комнаты посуточно или ежемесячно,.
Позвоните автору
Вам ответят на все вопросы

О квартире

Тип жилья

Вторичка

Общая площадь

86,5 м²

Площадь кухни

9 м²

Высота потолков

3,2 м

Санузел

1 раздельный

Балкон/лоджия

1 балкон

Вид из окон

На улицу и двор

Ремонт

Косметический

Перепланировка

Не было

О доме

Год постройки

1917

Строительная серия

Индивидуальный проект

Тип дома

Кирпичный

Тип перекрытий

Смешанные

Подъезды

4

Парковка

Наземная

Отопление

Центральное

Аварийность

Нет

Газоснабжение

Центральное

Юридические особенности

Несовершеннолетние собственники

Есть

Спросите умного помощника
Получите экспертное мнение о жилье

Расположение

Ипотечный калькулятор
  • Базовая
  • Семейная
  • ИТ-ипотека
  • 20%
  • 30%
  • 40%
  • 50%
лет
  • 10 лет
  • 20 лет
  • 30 лет
Загружаем предложения от застройщика и банков
СобственникID 55401885
    18 000 000 ₽
    Эксперт от ЦианаПомощь с поиском и гарантия безопасной сделки
    Цена за метр
    208 092 ₽/м²
    Ипотека
    возможна
    СобственникID 55401885