Мы используем куки-файлы. Соглашение об использовании
Только на Циан
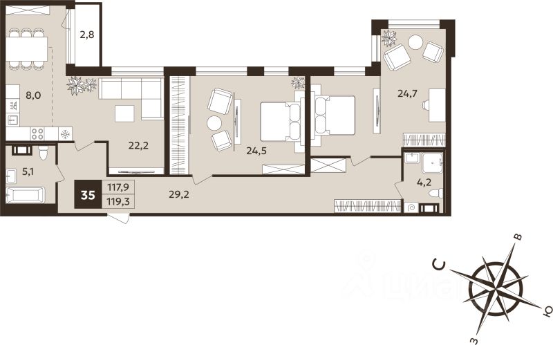
Общая площадь117,9 м²
Этаж6 из 9
Год сдачи2025
ДомСдан
Продаётся 3-комнатная квартира в сданном доме (Корпус 2), срок сдачи: IV-кв. 2025, общей площадью 117.9 кв.м., на 6 этаже. Новый дом построен в историческом центре Петербурга в 3 мин от метро Технологический институт. В нём всего 163 квартиры с просторными планировками (31 до 241 м2). Корпуса высотой 6-9 этажей. На нижних этажах окна квартир выходят в тихие, уютные дворы. С балконов и террас верхних этажей открываются виды на крыши старого города, Исаакиевский и Троице-Измайловский соборы, часовую башню Астрономической обсерватории Главной палаты мер и весов. Доступ на территорию жилого комплекса закрыт для посторонних. Во внутренних дворах разместились игровые площадки для детей разных возрастов, зоны для отдыха и занятий спортом. Входы в парадные находятся со стороны внутренних дворов. На территории и первых этажах ведется видеонаблюдение, организован круглосуточный пост охраны. В центральном лобби размещена консьерж-служба. Под территорией ЖК расположен двухуровневый подземный паркинг на 163 машиноместа. Из паркинга в свою парадную можно подняться на комфортабельном лифте. Также для жителей доступны кладовые помещения на подземных и первом этажах. В сердце Санкт-Петербурга Дом расположен в 1-2 минутах пешком до сада Олимпия и Московского проспекта. В 3 минутах - станция метро Технологический институт. За 9-10 минут от парадной можно дойти до набережной Фонтанки, за 15 минут доехать на авто до Эрмитажа или Мариинского театра. Рядом расположились престижные школы, вузы. В шаговой доступности - питерские рестораны и кафе, фитнес-центры, парки и театры.

О квартире

Тип жилья

Новостройка

Общая площадь

117,9 м²

Высота потолков

2,7 м

О доме

Тип дома

Монолитный

Похоже на то, что вы ищете?
Ипотечный калькулятор
  • Базовая
  • Семейная
  • ИТ-ипотека
  • 20%
  • 30%
  • 40%
  • 50%
лет
  • 10 лет
  • 20 лет
  • 30 лет
Загружаем предложения от застройщика и банков

Ещё квартиры в жилом комплексе

119 квартир в продаже · Сдан
Консультант
Циан
  • 6 лет 8 месяцев на Циане
  • 16588 объявлений
  • 43 559 267 ₽
    Цена за метр
    369 459 ₽/м²
    Условия сделки
    свободная продажа
    Консультант
    Циан