Мы используем куки-файлы. Соглашение об использовании
С мебельюТолько на ЦианПроверено в Росреестре

Продается 3-комн. квартира, 80,1 м²

Общая площадь80,1 м²
Жилая площадь66,7 м²
Площадь кухни9 м²
Этаж1 из 5
Год постройки1959
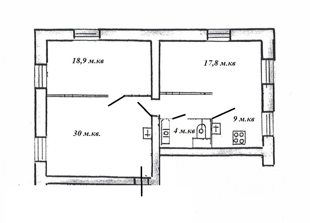
Продаётся квартира БАЙКЕРА! Эксклюзивное предложение! Уникальное планировочное решение и дизайн квартиры. Светлая (в квартире 6 больших окон), просторная 3 комн квартира в кирпичном СТАЛИНСКОМ доме 1959 года, с высокими потолками 2,90 м. Важные преимущества Квартиры: - толстые кирпичные стены (60 см) обеспечивают помимо тепла, полную шумоизоляцию (соседей не слышно, и вас тоже) - трансформируется под любые запросы, потребности, виды деятельности: может быть мастерской, для коммерческого использования с одновременным проживанием во второй половине квартиры; офисом; квартирой для семьи или для увлекающегося рыбалкой, охотой, лыжами и какими-либо иными видами активности или творчества Человека (огромное количество закрытых мест для хранения инвентаря, сейфы) (кухня приспособлена для самогоноварения); - преимущество 1 этажа в том, что при желании вы можете хоть мотоцикл припарковать в одной из комнат; - при необходимости можете перевести в нежилой объект (под квартирой сухой, чистый подвал, используется как коммерческое помещение) и/или сделать дополнительные входы в квартиру; - по периметру квартиры, снаружи, установлено 4 камеры видеонаблюдения; - установлен кондиционер; - оставлены стены с натуральным кирпичом (полностью очищен, обработан пескоструем), что добавляет квартире брутальности; - в квартиру заведено 7 кВт; - в квартире сделана перепланировка. Наружные границы квартиры не изменены, мокрые точки не переносились, несущие стены на месте. Ремонт делался для себя: заменена вся проводка, трубы (пластик), поменяна сантехника, смесители, пол (утепленный, по финской технологии, гарантия 50 лет, напольное покрытие, окна (2х камерные стеклопакеты с защитой от УФ), двери (железные, антивзломные). - окна квартиры выходят на три стороны. Общ.пл. 80,1 м.кв Жил.пл. 66,7 м.кв (комнаты 30+18,9+17,8 м.кв.) Кухня 9 м.кв Совмещенный санузел в кафеле с ванной. Газовая колонка. Цокольный, высокий 1 этаж 5 этажного здания. Спокойные, тихие и очень лояльные соседи. Все друг друга знают, дружат. Во дворе всегда есть место, где припарковать мотоцикл и/или машину. Надежная и качественно относящаяся к своему делу, управляющая компания. Дом находится в районе с развитой инфраструктурой: в шаговой доступности продуктовые магазины, кафе и рестораны, фитнес залы, торговые центры, детские сады и школы, салоны красоты. Метро Московская в 4 минутах пешком, остановка общественного транспорта напротив дома. Юридическая чистота: один взрослый собственник, на сделке будет присутствовать. Собственность более 20 лет. Документы готовы. Обременений нет. Полная цена в договоре. Прямая продажа. Единичное, редкое предложение на рынке недвижимости. Звоните для просмотра!
Позвоните автору
Вам ответят на все вопросы

О квартире

Тип жилья

Вторичка

Общая площадь

80,1 м²

Жилая площадь

66,7 м²

Площадь кухни

9 м²

Высота потолков

2,9 м

Санузел

1 совмещенный

Вид из окон

На улицу и двор

Ремонт

Косметический

Перепланировка

Была

Продаётся с мебелью

Да

О доме

Год постройки

1959

Строительная серия

1-405

Тип дома

Кирпичный

Тип перекрытий

Железобетонные

Подъезды

5

Парковка

Наземная

Отопление

Центральное

Аварийность

Нет

Газоснабжение

Центральное

Юридические особенности

Несовершеннолетние собственники

Нет

Материнский капитал при покупке

Не использовался

Спросите умного помощника
Получите экспертное мнение о жилье
Информация из Росреестра
Обременения
Нет
Площадь
80,1 м²
Этаж
1
Собственников
1
Кадастровый номер
78:14:0007666:***

Расположение

Ипотечный калькулятор
  • Базовая
  • Семейная
  • ИТ-ипотека
  • 20%
  • 30%
  • 40%
  • 50%
лет
  • 10 лет
  • 20 лет
  • 30 лет
Загружаем предложения от застройщика и банков
20 400 000 ₽
Эксперт от ЦианаПомощь с поиском и гарантия безопасной сделки
Цена за метр
254 682 ₽/м²
Условия сделки
свободная продажа
Ипотека
возможна
Агентство недвижимости
Суперагент