Мы используем куки-файлы. Соглашение об использовании
Только на ЦианПроверено в Росреестре
Площадь дома205 м²
Участок9 сот.
Материал домаКаркасный
Этажей в доме2
Год постройки2017
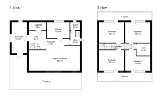
Зимний дом 205 кв.м., большой гараж с навесом на участке 9 соток (фактически 11) в самом тихом месте посёлка Первомайское! 1-й этаж: большая кухня-гостиная с панорамным остеклением, кабинет (спальня), прихожая, гардеробная, санузел и большая терраса (часть террасы застеклена!); 2-й этаж: 4 спальни с балконами, кладовки и санузел. Гараж (72 кв.м.) с автоматическими подъёмными воротами и дополнительным навесом для гостевых машин. Участок с идеальным газоном, плодовыми деревьями (яблони, груши и сливы), малиной и клубникой. Участок огорожен забором с двумя автоматическими откатными воротами. Вся мебель остаётся! Дом полностью готов к проживанию! Коммуникации: магистральный газ, центральный водопровод, электричество 15кВт, септик. Очень хорошие соседи! Полноценное круглогодичное жильё на природе. Рядом много чистейших красивых озер, много грибных и ягодных мест (в пешей доступности). До горнолыжного курорта Коробицино, Красное озеро 20 минут на а/м. От Санкт-Петербурга по трассе Скандинавия 20 минут от ЗСД. (40 км). До центра п. Первомайское 7 минут пешком. Там есть 2 детских сада, школа, шикарный продуктовый рынок с фермерскими продуктами, сетевые магазины Лента, Магнит, Пятерочка, Стройудача и др. Удобное сообщение со СПб: маршрутки К-600 и К-675 ходят каждые полчаса до станций метро Беговая и Парнас. Один собственник. Документы готовы для быстрой сделки. Вся сумма в договоре. Подходит под ипотеку. Всегда в продаже много отличных домов! Звоните, покажу все варианты! Помогу с продажей вашего объекта недвижимости!
Позвоните автору
Вам ответят на все вопросы

О доме

Площадь

205 м²

Материал дома

Каркасный

Состояние дома

Можно жить

Количество этажей

2

Количество спален

5

Год постройки

2017

Об участке

Площадь

9 сот.

Категория земель

Земли населённых пунктов

Статус участка

Садоводство

Коммуникации и удобства

Санузел

2 в доме

Канализация

Септик

Водоснабжение

Центральное

Отопление

Автономное газовое

Электричество

Есть

Газ

Магистральный в доме или на участке

Дополнительно

Терраса Гараж

Спросите умного помощника
Получите экспертное мнение о жилье

Информация из Росреестра

Кадастровые номера участка 47:01:1717001:*** и здания 47:01:1717001:*** указал продавец

Данные получены 3 декабря 2024 года

Oб участке
Категория земель
Земли населенных пунктов
Разрешённое использование
Для иных видов жилой застройки
Обременение
Heт сведений
Читать дальше
План участка
Превью плана участка

Расположение

Подпишитесь на объявления в этой локации
Мы сообщим, как только поблизости появится что‑нибудь новенькое
Ипотечный калькулятор
  • Базовая
  • Семейная
  • ІТ-ипотека
  • 20%
  • 30%
  • 40%
  • 50%
лет
  • 10 лет
  • 20 лет
  • 30 лет
Загружаем предложения от застройщика и банков
РиелторКонстантин Михайловер
Суперагент
  • 4,8・106
  • 10 лет на Циане
  • 60 объявлений
  • Хотите продать недвижимость?Разместите объявление на ЦианРазместить
    25 000 000 ₽
    Эксперт от ЦианаПомощь с поиском и сделкой
    Цена за метр
    121 951 ₽/м²
    Ипотека
    возможна
    РиелторКонстантин Михайловер
    Суперагент