Мы используем куки-файлы. Соглашение об использовании
Только на ЦианПроверено в Росреестре
Площадь дома206,7 м²
Участок8,15 сот.
Материал домаКирпичный
Этажей в доме2
Год постройки2010
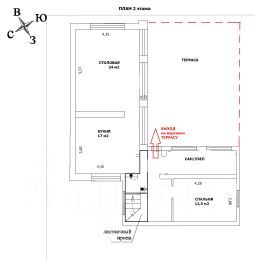
Предлагаем добротный дом, площадью 206,7 м2 в Санкт-Петербурге, в поселке Левашово, прописка городская. Дом расположен на участке 8,15 соток ИЖС, прямоугольной вытянутой формы. Дом поставлен на кадастровый учет в 2024 году в результате реконструкции: к основному кирпичному двухэтажному зданию 80 м2 пристроена дополнительная одно-двухэтажная часть из пеноблоков с террасой на крыше. Крыша металлическая гофра. Отдельно стоящий гараж из пеноблоков. Въездная группа с коваными воротами и калиткой. Всего в доме 4 комнаты, 2 санузла, сауна, кухня. На 1 этаже расположены: просторный холл 24 м2, вместительная гардеробная, огромная гостиная 63 м2 с выходом на задний двор, спальня 25 м2, санузел с сауной, хоз. помещение. Лестница из светлого бука ведет на 2-ой этаж, где находится кухня 17 м2 с примыкающей к ней столовой 24 м2, спальня 12,5 м2, большой совмещенный санузел с 2 окнами. Имеется выход на крышу 1 этажа, где можно обустроить солярий или террасу. Со стороны заднего двора к дому пристроена крытая веранда 40 м2, которая требует дообустройства. Газ центральный, газовый котел для отопления и горячей воды, установлен бойлер. Холодное водоснабжение центральное, канализация локальная. Электричество 15 кВт. Ремонт в отличном состоянии. Пол паркетная доска, ламинат, итальянская плитка. Стеклопакеты. Кондиционер на 2 этаже. Дом продается в связи с переездом в другой город, поэтому вся обстановка, включая итальянскую мебель из массива ценных пород дерева, мягкие гарнитуры, представленные на фото во всех комнатах и на кухне, практически всё остается новому хозяину. Также остается бытовая техника, хрустальные люстры и светильники, картины и разнообразные аксессуары по договоренности. В Левашово развитая инфраструктура: имеются школа, детские сады, детская и взрослая поликлиника, продовольственные магазины, в том числе фермерских продуктов, и иные предприятия услуг. Замечательные детские и спортивные площадки, в том числе в рекреационной зоне у водоема. Удобный выезд на КАД и ЗСД. В Выборгский район до метро Просвещения или в Приморский до метро Комендантский проспект 15-20 минут. От жд станции на электричке 20 минут до Финляндского вокзала и метро пл. Ленина. 1 взрослый собственник. Документы готовы.
Позвоните автору
Вам ответят на все вопросы

О доме

Площадь

206,7 м²

Материал дома

Кирпичный

Состояние дома

Можно жить

Количество этажей

2

Количество спален

4

Год постройки

2010

Об участке

Площадь

8,15 сот.

Категория земель

Земли населённых пунктов

Статус участка

Индивидуальное жилищное строительство

Коммуникации и удобства

Санузел

2 в доме

Канализация

Септик

Водоснабжение

Центральное

Отопление

Центральное газовое

Электричество

Есть

Газ

Магистральный в доме или на участке

Дополнительно

Терраса Гараж

Спросите умного помощника
Получите экспертное мнение о жилье

Информация из Росреестра

Кадастровые номера участка 78:36:0013338:*** и здания 78:36:0013338:*** указал продавец

Данные получены 1 апреля 2025 года

Oб участке
Категория земель
Земли населенных пунктов
Разрешённое использование
для размещения индивидуального жилого дома (индивидуальных жилых домов)
Обременение
Heт сведений
Читать дальше

Расположение

Подпишитесь на объявления в этой локации
Мы сообщим, как только поблизости появится что‑нибудь новенькое
Ипотечный калькулятор
  • Базовая
  • Семейная
  • ИТ-ипотека
  • 20%
  • 30%
  • 40%
  • 50%
лет
  • 10 лет
  • 20 лет
  • 30 лет
Загружаем предложения от застройщика и банков
Хотите продать недвижимость?Разместите объявление на ЦианРазместить
24 490 000 ₽
Цена за метр
118 481 ₽/м²
Условия сделки
свободная продажа
Ипотека
возможна
Агентство недвижимости
Документы проверены