Мы используем куки-файлы. Соглашение об использовании
Только на Циан
Общая площадь62,2 м²
Участок10,5 сот.
Материал домаЩитовой
Этажей в доме1
Год постройки1964
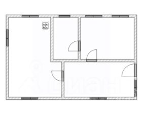
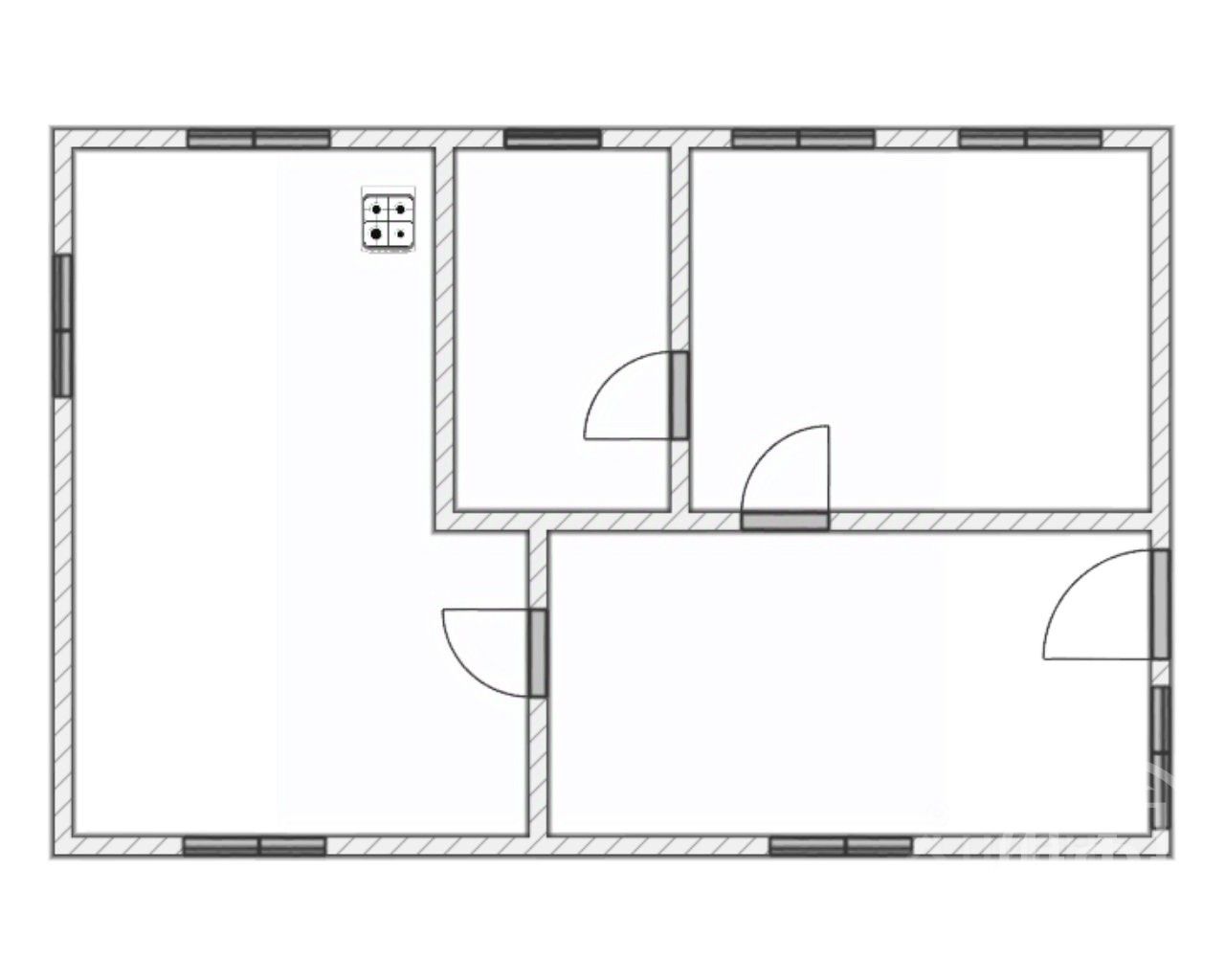
339382 (168) В уютном месте в пос. Рощино Выборгского р-она Ленинградской области новое предложение — одноэтажный дом 1964 г. п., общая площадь которого составляет 62,2 кв. м. Дом состоит из веранды, кухни с печью, комнаты, просторной прихожей и совмещенного с/у. Фундамент столбчатый. Крыша — шифер. Эл-во 10 кВт. Водоснабжение — отсутствует. Канализация локальная. Отопление печное. Хороший мобильный интернет. Участок составляет 10,5 сотки, земли населенных пунктов, вид разрешенного использования —под строительство индивидуального жилого дома. Участок ровный, сухой, с плодовыми деревьями (груши, яблони, сливы) и кустарниками (смородина, малина). Сделан въезд. Огорожен с двух сторон. Собственность. Один сосед. Участок с двух сторон граничит с хорошим хвойным лесом. На участке теплица. Подъезд - грунтовая дорога, до асфальта 10 м. До центра п. Рощино 20 минут пешком, до ж/д ст. Рощино 10 мин неспешного шага. В Рощино Вы найдете сетевые магазины "5", Магнит, пекарни, кафе, аптеки, школу и д/сады. Чистые озера в пешей доступности. Лес с черничником и брусничником. Прекрасный вариант как для постоянного места проживания, так и для загородного отдыха. Изумительная природа, грибы, ягоды и рыбалка.
Позвоните автору
Вам ответят на все вопросы

О доме

Площадь

62,2 м²

Материал дома

Щитовой

Количество этажей

1

Год постройки

1964

Об участке

Площадь

10,5 сот.

Статус участка

Индивидуальное жилищное строительство

Коммуникации и удобства

Канализация

Есть

Электричество

Есть

Газ

Нет

Спросите умного помощника
Получите экспертное мнение о жилье

Расположение

Подпишитесь на объявления в этой локации
Мы сообщим, как только поблизости появится что‑нибудь новенькое
Ипотечный калькулятор
  • Базовая
  • Семейная
  • ІТ-ипотека
  • 20%
  • 30%
  • 40%
  • 50%
лет
  • 10 лет
  • 20 лет
  • 30 лет
Загружаем предложения от застройщика и банков
Хотите продать недвижимость?Разместите объявление на ЦианРазместить
6 800 000 ₽
Эксперт от ЦианаПомощь с поиском и сделкой
Цена за метр
109 325 ₽/м²
Ипотека
возможна
Агентство недвижимости
Документы проверены
5,0・3