Мы используем куки-файлы. Соглашение об использовании
Только на Циан
Общая площадь192 м²
Участок12 сот.
Материал домаГазобетонный блок
Этажей в доме2
Год постройки2020
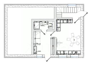
342057 Ленинградская область, Выборгский р-н, г.п.Рощино. Новый жилой дом общ. пл. 192 кв.м на участке 12 сот. во 2-й линии от берега р. Широкой. На первом этаже: кухня - гостиная 42 кв.м, прихожая, санузел с душем, встроенный гараж. На втором этаже холл, 3 спальни, санузел с ванной. В доме современный дизайн, кухонная зона оборудована качественной мебелью и техникой. Участок огорожен забором на ленточном фундаменте с автоматическими воротами, парковка для 2-3 автомобилей. Электричество 15кВт, вода питьевая из собственной скважины, газовый котел отопления(есть газгольдер, газ подведен к участку-осталось только подключить), локальная канализация.Есть возможность увеличить участок до 17 соток. Дом расположен на окраине Рощино, граничит с лесом, в 20 м от дома выход к реке и общему пирсу. Общая территория застройки ограничена шлагбаумом-проезд только для собственников. На берегу Рощинского озера вы найдете красивую церковь, стадион `Рощино-Арена` и ледовую арену. Пляжи оборудованы, а парковая зона предлагает уютное место для отдыха. Наличие школы, детских садов, сетевых магазинов, поликлиники, дома культуры, сбербанка и т.д. - делает проживание в этом районе очень удобным. Поселок имеет прямое сообщение с СПб, благодаря электричкам, скоростной `Ласточке` и маршрутке 680. Быстрый выезд на Скандинавию. Рядом с поселком находится заказник Линдуловская Роща, горнолыжный курорт `Пухтолова гора`. Один взрослый собственник, полная стоимость в договоре, никто не прописан. Что вы получите, кроме завистливых взглядов друзей и родственников? - Готовый дом, в котором можно реализовать свои мечты и фантазии. - 12 соток земли - достаточно, чтобы посадить сад, огород и обустроить зону отдыха. - Рыбалку и выход в лес за грибами и ягодами прямо возле дома. - Достойное окружение-рядом только новая застройка и минимум соседей. - Близость развитой инфраструктуры поселка создает возможность комфортного проживания.
Позвоните автору
Вам ответят на все вопросы

О доме

Площадь

192 м²

Материал дома

Газобетонный блок

Количество этажей

2

Год постройки

2020

Об участке

Площадь

12 сот.

Статус участка

Индивидуальное жилищное строительство

Коммуникации и удобства

Канализация

Есть

Водоснабжение

Скважина

Электричество

Есть

Газ

Есть

Дополнительно

Гараж

Спросите умного помощника
Получите экспертное мнение о жилье

Расположение

Подпишитесь на объявления в этой локации
Мы сообщим, как только поблизости появится что‑нибудь новенькое
Ипотечный калькулятор
  • Базовая
  • Семейная
  • ИТ-ипотека
  • 20%
  • 30%
  • 40%
  • 50%
лет
  • 10 лет
  • 20 лет
  • 30 лет
Загружаем предложения от застройщика и банков
Хотите продать недвижимость?Разместите объявление на ЦианРазместить
49 000 000 ₽
Эксперт от ЦианаПомощь с поиском и гарантия безопасной сделки
Цена за метр
255 208 ₽/м²
Ипотека
возможна
Агентство недвижимости
Риелтор
Суперагент