Мы используем куки-файлы. Соглашение об использовании
Только на Циан
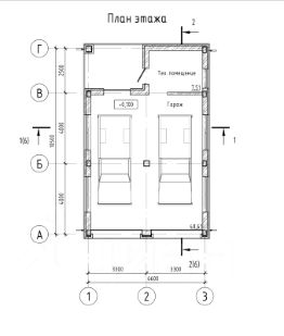
Площадь дома288 м²
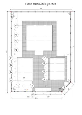
Участок12 сот.
Материал домаМонолитный
Этажей в доме2
Год постройки2025
Описание Изысканное домовладение для городской жизни в безопасности, комфорте, красоте и тишине загородного поселка со своей уникальной инфраструктурой. ДОМОВЛАДЕНИЕ ВКЛЮЧАЕТ В СЕБЕ: Земельный участок- 1200 м2 (ровный, сухой, подготовленный) Дом 2 этажа, 288 м2 (теплый контур с полной экстерьерной отделкой) - Гостевой дом 77 м2 (отделка под ключ, можно заезжать жить) Гараж на 2 авто 70м2 (с полной отделкой и электрической зарядкой для авто) Коммуникации (газ, вода, электричество, канализация) Забор и территория (лицевая часть по регламенту поселка, фундамент под барбекю, въездная группа- брусчатка) ОПИСАНИЕ СТРОЕНИЙ: ДОМ Современный монолитный Фахверк, комфортабельный современный Дом, внимание к деталям которого обеспечивает максимальное удобство проживания. площадь застройки 12/12 м, 2 этажа, 3 спальни, кабинет, 3 сан узла, 3 гардероба, кухня-гостиная, сауна. Дом передается в теплом контуре со всеми коммуникациями, ровные подготовленные оштукатуренные стены, полная внешняя отделка, деревянные экологичные и энергоэффективные окна. Конструктив: монолитный фундамент, каркас, перекрытие, лестница Заполнение из газобетона Фасад- клинкерный кирпич Цоколь, утепленный с отделкой из гранита Крыша металл- фальц высокого качества с шумоизоляцией, подшита ГОСТЕВОЙ ДОМ: площадь застройки 11/7 м, 1 этаж, 2 спальни, бойлерная, сан узел, кухня-гостиная. здание передается с полной чистовой отделкой со всеми коммуникациями. Уличное освещение, розетки и краны Конструктив: монолитный фундамент, стены- газобетон, перекрытие деревянное, Фасад- клинкерный кирпич, Цоколь, утепленный с отделкой Крыша металл- фальц высокого качества с шумоизоляцией, подшита ГАРАЖ: площадь застройки 10.5/6.6 м, 1 этаж, техническое помещение 2.5/3.3 м, парковочная зона на 2 автомобиля, длина 8 метров, ширина места 3.3 м, силовая электрическая розетка для авто разводка электричества, с полной отделкой Уличное освещение, розетки и краны Конструктив: монолитный фундамент, стены- газобетон, Фасад- клинкерный кирпич, Цоколь, утепленный с отделкой Крыша металл- фальц высокого качества с шумоизоляцией, подшита УЧАСТОК И ЛАНДШАФТ: Участок ровный, подготовленный, проводилась полная выторфовка грунта, дренаж Дом и другие постройки гармонично интегрированы в участок. В проекте реализуется лицевая часть забора в соответствии с концепцией поселка, брусчатка. РАСПОЛОЖЕНИЕ: Бесспорное достоинство местоположения КП "Репино парк" - это его транспортная доступность. до ЗСД - 8 км и КАД 26 км. Из центра СПб дорога занимает 30-40 минут. Три контрольно-пропускных пункта и система видеонаблюдения г УСЛОВИЯ И ДОКУМЕНТЫ: Проект готов, работы произведены надежной строительной компанией с безупречной репутацией. Возможно внести коррективы и дополнения в проект под ваши требования. Земельный участок в собственности, все документы готовы к сделке. Рассматриваем варианты взаиморасчетов с поэтапным финансированием.
Позвоните автору
Вам ответят на все вопросы

О доме

Площадь

288 м²

Материал дома

Монолитный

Количество этажей

2

Количество спален

5

Год постройки

2025

Об участке

Площадь

12 сот.

Категория земель

Земли населённых пунктов

Статус участка

Дачное некоммерческое партнерство

Коммуникации и удобства

Санузел

1 в доме

Канализация

Септик

Водоснабжение

Центральное

Отопление

Автономное газовое

Электричество

Есть

Газ

Магистральный в доме или на участке

Дополнительно

Гараж

Спросите умного помощника
Получите экспертное мнение о жилье

О КП «Репино Парк»

Класс

Комфорт

Всего объектов

50

Объектов в продаже

50

Расположение

Подпишитесь на объявления в этой локации
Мы сообщим, как только поблизости появится что‑нибудь новенькое
Ипотечный калькулятор
  • Базовая
  • Семейная
  • ИТ-ипотека
  • 20%
  • 30%
  • 40%
  • 50%
лет
  • 10 лет
  • 20 лет
  • 30 лет
Загружаем предложения от застройщика и банков
Хотите продать недвижимость?Разместите объявление на ЦианРазместить
89 000 000 ₽
Эксперт от ЦианаПомощь с поиском и сделкой
Цена за метр
309 028 ₽/м²
Условия сделки
свободная продажа
Ипотека
возможна
Агентство недвижимости
Документы проверены
На Циан
7 лет
Объектов в работе
33
5,0・1