На несколько месяцев, 35 000 ₽ + 3 000 ₽ комм. платежи (без счётчиков), без комиссии, без залога
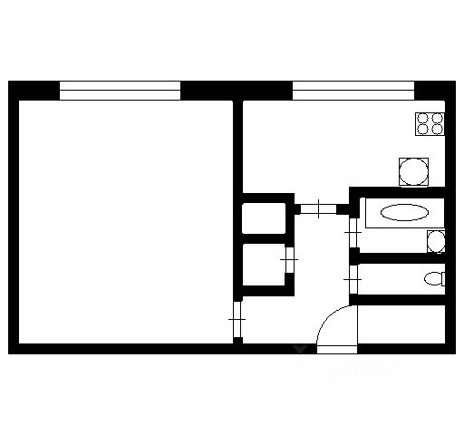
Сдам в аренду, для проживания, в Санкт-Петербурге, проспект Карла Маркса, дом 60, общей площадью 34,3 кв.м. Имеется отдельный вход, стоянка для автомобилей перед домом, подъезд и вход с проспекта. Помещения находятся в новом доме. Возможны изменения комплектации мебелью или сдача пустых помещений, возможна сдача под офис, производство, услуги. Помещения расположены на 1 этаже двухэтажного, кирпичного дома. Имеется отдельная комната 23,4 кв.м., кухня 5,9 кв.м.(оборудована всей необходимой техникой), санузел совмещенный 5,0 кв.м., прихожая 2,0 кв.м.. Имеются: выделенный проводной интернет канал, Wi-Fi, антенное ТВ. Высота потолков 2,8 метра. Перед домом имеется собственный газон с возможностью посадки растений(в соответствующий сезон). Обьект находится в доме на охраняемой территории. Дом находится в центре поселка Левашово, до метро Проспект Просвещения 9 км. В шаговой доступности супермаркеты, автобусная остановка(автобусом 15 минут до м. Проспект Просвещения, автобусы ходят несколько раз в час), железнодорожная станция на расстоянии 5-7 минут пешком(электричка до метро Удельная 10 минут, до метро Площадь Ленина 20 минут). Поселок Левашово имеет развитую инфраструктуру: есть поликлиника, аптека, отделение связи, школа, два детских сада, сетевые супермаркеты Пятерочка и др., фермерский магазин, библиотека, столовая, зоо магазин, храмы и пр. развитая инфраструктура города Санкт-Петербурга. Поселок имеет несколько прогулочных зон, пять детских площадок, озеро. Коммунальные услуги оплачиваются отдельно. Любители активного отдыха могут посетить в ближайшей доступности: Левашовские пруды (рыбалка, аренда лодок, пляжная территория), конный клуб, стадион на свежем воздухе с баскетбольной площадкой и тренажерами, Дибуновский лесопарк, Левашовский лес, так же удобно добраться до таких мест, как: Сестрорецкий разлив, Государственный природный заказник Сестрорецкий разлив (экотропа "Сестрорецкое разлив"), Музей Шалаш В.И. Ленина, МПК Сестрорецкий Рубеж. Сдается в аренду на длительный срок, минимальный срок аренды 2 месяца.



















































































