Первичная продажа



10 акций
Онлайн-бронирование
дом сдан
Крестовский остров
4 минуты на транспорте
37 285 640 ₽
719 800 ₽/м²
Цена действует при 100% оплате и на определенные ипотечные программы.
Подробности — в отделе продаж по телефону.
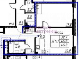
Продаётся 1-комнатная квартира в ЖК "NEVA HAUS" на 8 этаже. Общая площадь составляет 51.80 кв. м. Квартира без отделки. Жилой комплекс "NEVA HAUS" располагается по адресу Санкт-Петербург, Петроградский.
NEVA HAUS - элитный жилой комплекс в самой зеленой части Петровского острова, в точке слияния двух рек, напротив Крестовского острова. У жителей появится благоустроенная набережная с пирсом и павильон с необходимыми сервисами и услугами. Потолки до 3,8 м, увеличенные деревянно-алюминиевые окна, современные технические решения, закрытая территория и внутренняя инфраструктура - важные слагаемые качественной жизни в Нева Хаус.
Расположение:
• 4 мин на авто до Крестовского острова;
• 5 мин на авто до Приморского парка Победы;
• 6 мин на авто до станции метро "Крестовский остров";
• 18 мин на авто до ЗСД;
• 20 мин на авто до Стрелки В.О. и исторического центра города.
NEVA HAUS стал первым элитным жилым комплексом в Санкт-Петербурге, официально получившим статус энергоэффективного, водоэффективного и экологичного объекта по системе GREEN ZOOM.
Для удобства жителей, квартира будет подключена к IP-домофонии, на гостевой парковке предусмотрены зарядки для электромобилей. В квартире устроена ниша для размещения кондиционеров, индивидуальные каналы вентиляции, отверстия на фасаде для современных приточно-вытяжных систем, пятиступенчатая очистка воды, коллекторная разводка труб отопления и дерево-алюминиевые окна соответствуют высокому классу жилья.
Преимущества ЖК:
• Эксклюзивная локация. Жизнь на первой линии у воды. Проект расположен на Петровском острове - в нескольких минутах езды от премиальной инфраструктуры Петроградской стороны и Крестовского острова.
• Готовое пространство для жизни.На территории проекта работают магазины, премиальные рестораны и сервисы, открыта школа.
• Прогулки по набережной. Пространство для живописных прогулок.
• Особый стиль жизни в каждой детали. Элегантная архитектура, статусные лобби, подземный паркинг, закрытая от посторонних территория.
• Благоустройство премиум-класса. Авторский ландшафтный дизайн, детские площадки, зоны отдыха и дорожки в эко-стиле из натуральных материалов.
Успейте приобрести квартиру на выгодных условиях!
Чтобы узнать подробности, обращайтесь за консультацией по телефону. Продам 1-комнатную квартиру, подойдёт для элитной жизни на проспекте Петровский в Санкт-Петербурге.

















































































































