


395 200 ₽/м²
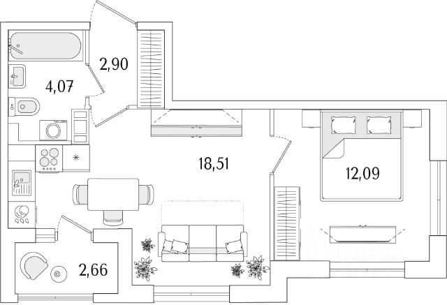
Продаётся 1-комн. квартира площадью 37,1 кв.м на 11 этаже 12 этажного дома (Корпус 6, Секция 4) проекта ПИК Витебский парк. Светлый просторный подъезд на уровне земли, функциональная планировка, большие окна, c отделкой. Жилой квартал "Витебский парк" находится во Фрунзенском районе Санкт-Петербурга, в 15 минутах пешком от метро "Обводный канал". А в 2027 году всего в паре минут от проекта планируют открыть станцию метро "Боровая". В квартал входят 3 детских сада, школа и 7 жилых домов с дворами-парками, куда не могут зайти посторонние люди и заехать автомобили. Школа на 1250 мест и детский сад на 350 мест откроются одновременно с заселением первой очереди, это значит, что жители проекта смогут отдать своих детей в новые образовательные учреждения на территории квартала. Во дворах приятно отдыхать, знакомиться с соседями и даже заниматься йогой, а для детей мы построим детские площадки. Рядом появятся современные спортивные площадки. На первых этажах домов откроются магазины, кафе и другие сервисы. Через весь жилой район протянется широкий пешеходный бульвар для прогулок и спорта. Рядом с "Витебским парком" есть всё для комфортной жизни: магазины, торговые центры, фитнес-клубы, кафе и рестораны, а ещё детские сады, школы, вузы и поликлиника. Артикул 1005628 (Застройщик ООО "СЗ "Лиговский Сити") [cn_sbp_1860863]





































































































