


285 326 ₽/м²
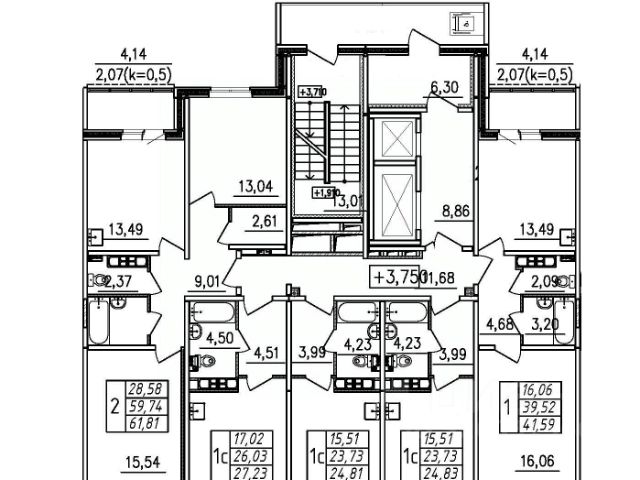
Продается 1-комн. квартира от застройщика с отделкой в ЖК "ALL In 3.0" на 11 этаже. Общая площадь: 34.1 кв.м., площадь просторной кухни-столовой: 10.9 кв.м. Высота потолков 2.72 м. Дом монолитный, черырехподъездный, переменной этажности, от 11 до 12 этажей. Квартира находится в 1-й секции высотой 12 этажей в корпусе 1. На этаже 14 квартир. В подъезде 1 пассажирский и 1 грузовой лифт. Начало строительства - 2 квартал 2017 года. Строительство завершено, дом сдан во 2 квартале 2021 года. Оформление сделки по договору купли-продажи. Жилой комплекс "Аквилон All in 3.0" — это 12-этажный дом комфорт-класса. При покупке каждый покупатель получает не только квартиру, но и сертификаты на приобретение мебели и техники. При проектировании квартир используется принцип "Разумные метры" — места для систем хранения и гардеробных, классические и европейские планировки с объединенной кухней-гостиной, остеклённые во всю высоту балконы и лоджии глубиной 1,2 метра. Дом возводится по стандарту Э4, в основе которого экономия, экологичность, эргономика и энергоэффективность. В каждой квартире будут установлены интеллектуальная система управления домом inHOME 3.0, оборудование для механической очистки воды, комплексная система защиты от шума SOUNDSTOP, клапаны инфильтрации воздуха VENT-IN и широкоформатные окна по стандарту LIGHT-IN для достижения максимальной инсоляции в квартире. На огороженной охраняемой территории под видеонаблюдением разместится собственный парк площадью 4,2 Га с беседками и зонами отдыха, универсальными спортивными и современными детскими площадками. На первых этажах дома планируются коммерческие помещения, в которых будут все необходимые товары и услуги. Для резидентов комплекса предусмотрены детский клуб "Аквилон KIDS", подземный паркинг и сити-боксы с доступом на лифте. Вблизи ЖК расположены магазины, школы, детские сады, гипермаркеты и торгово-развлекательные центры.



































































































