Первичная продажа



Рассрочка
ещё 9 акций
С отделкой
сдача ГК: 2 кв. 2029 года
Ладожская
4 минуты на транспорте
17 768 772 ₽
518 040 ₽/м²
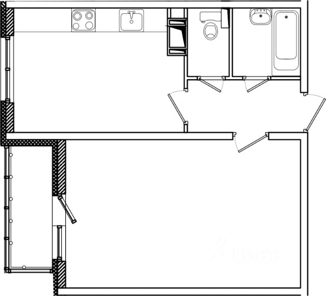
1-комн. квартира с предчистовой отделкой в ЖК "ЛЕГЕНДА на Охте" на 7 этаже. Общая площадь: 34.3 кв.м., жилая: 11.1 кв.м., площадь просторной кухни-столовой: 15.3 кв.м. Все окна выходят на одну сторону. В квартире один совмещенный санузел. Высота потолков 2.7 м.
Квартира находится в корпусе N. Дом монолитный, двухподъездный, высотой 14 этажей. На этаже 7 квартир. В подъезде 1 пассажирский и 1 грузовой лифт. Начало строительства - 1 квартал 2026 года. Окончание строительства - 2 квартал 2029 года. Оформление сделки по договору долевого участия.
В шаговой доступности от жилого комплекса имеются станции метро (расстояние по прямой): "Новочеркасская" (1.1 км), "Ладожская" (1.3 км), также недалеко от этого корпуса расположены станции метро: "Площадь Александра Невского", "Чернышевская", "Площадь Восстания".
Охта — район с выраженным индустриальным характером и архитектурным наследием XX века.
Северная часть территории характеризуется сложившейся застройкой и социальной инфраструктурой, которые формируют образ жилого района комфорт-класса.
Южная часть расположена ближе к набережной Невы и историческому центру города. Здесь активный ритм деловой и культурной жизни, знаковые памятники архитектуры и развитая транспортная сеть. Именно здесь, на приватной территории, сформированной извилистым течением реки Охты, расположен кластер статусных жилых проектов, ансамбль которого завершает проект "ЛЕГЕНДА на Охте".
"ЛЕГЕНДА на Охте" — новый проектс высокими продуктовыми стандартами LEGENDA: продуманный выбор планировочных решений, технологичная комплектация квартир, авторская модель благоустройства, приватность и сервисы.
Количество корпусов: 4
Высотность: 14 этажей
Количество квартир в проекте: 418
Квартиры-студии: 10%
1-спальневые квартиры: 40%
2-спальневые квартиры: 25%
3-спальневые квартиры: 25%
Высота потолков: 2,85-3,0 м
Паркинг и кладовые
10 минут езды до центра города, набережной Невы, деловых кластеров. В шаговой доступности все необходимое для жизни: статусный молл, бизнес-центры, фитнес-студии, парки и супермаркеты.
Квартиры спроектированы на базе лучших планировочных решений: дизайнерские квартиры, светлые кухни-гостиные с угловым остеклением, просторные мастер-спальни с собственными санузлами и гардеробными, видовые террасы и лоджии c панорамным остеклением, отдельные зоны хранения и удобные постирочные.
Широкий выбор типологий: функциональные планировки разной площади, подходящие для семей с детьми, пар или индивидуального проживания.
Благоустройство на основе авторской функционально-компонентной модели
- Приватный двор без автомобилей с контролем доступа.
- Зонирование территории: отдельные пространства для детей разного возраста, игровые и спортивные площадки, рекреационные зоны.
- Озеленение: крупномерные деревья и кустарники, цветочные композиции, учитывающие сезонность.
- Бесшовные внутридворовые маршруты.
Комплектация квартир ТехноБокс — технически подготовленное пространство и готовность к декорированию
- Со

















































































































