


294 374 ₽/м²
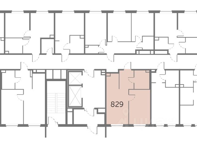
Продаётся 1-комнатная квартира в ЖК "Цивилизация на Неве" на 7 этаже. Общая площадь составляет 39.75 кв. м. Квартира с white box отделкой. Жилой комплекс "Цивилизация на Неве" располагается по адресу Санкт-Петербург, Невский. "Цивилизация на Неве" - видовые дома бизнес-класса, расположенные вдоль набережной Невы, всего в 7 км от исторического центра. Жилой комплекс идеально выражает особый дух, свойственный знаменитым просторным кварталам постройки сталинской эпохи в Москве и на Московском проспекте в Петербурге. Расположение: • 15 мин на авто до Невского проспекта; • 15 мин на авто до Московского вокзала; • 5 мин на авто до станции метро "Улица Дыбенко"; • 14 мин (7 км) до КАД. Уникальный дизайн входных зон, закрытая территория, видеонаблюдение и охрана, подземный паркинг с лифтом и другие особенности проекта отвечают заявленному классу. В каждом дворе предусмотрено озеленение по индивидуальному ландшафтному проекту с благородными растениями и кустарниками. Преимущества: • Закрытая территория с видеонаблюдением; • Подземный паркинг с лифтом; • Детская площадка на приватной безопасной территории; • Несколько детских садов и школ; • Инфраструктура шаговой доступности на первых этажах корпусов. Успейте приобрести квартиру на выгодных условиях! Чтобы узнать подробности, обращайтесь за консультацией по телефону. Купить квартиру евродвушку в новостройке рядом с метро Ломоносовская.































































































































































