


178 851 ₽/м²
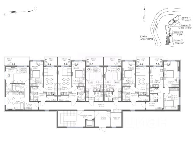
"Малая Финляндия" - квартал с собственной инфраструктурой, детскими площадками, зонами отдыха и причалами для катеров. Комфортные условия для жизни рядом с центром Выборга, на мысе Папула. Побережье Финского залива, на котором располагается жилой комплекс, является сказочным по красоте местом с наклонным рельефом. Отсюда открываются живописные виды на залив и на средневековый замок. Здесь шумит ветер и волна прибоя. А звуки города остаются далеко за пределами комплекса. Здесь спокойно, уютно и надежно. Трехэтажные дома-резиденции с лифтом у залива. Четыре корпуса: "Порвоо", "Раума", "Савонлинна" и "Хамина" с высокими потолками (2,89 м) и собственными террасами у жителей первых этажей, большими и широкими лоджиями на вторых и третьих этажах. Виды на залив у обладателей всех без исключения квартир.











































































































