


191 270 ₽/м²
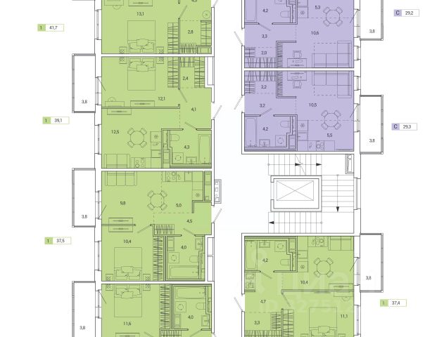
2 - комнатная квартира на 6 этаже общей площадью 53,17 м² в IV очереди в жилом комплексе Сертолово Парк от застройщика ГК Алгоритм. Все квартиры в ЖК Сертолово Парк сдаются с чистовой отделкой в скандинавском стиле. Въезжайте и живите без дополнительных затрат на ремонт. Увеличенные оконные проемы и потолки высотой 2,74 м придают квартирам в ЖК Сертолово Парк ощущение простора, обеспечивая максимальное естественное освещение и свежий воздух. Энергосберегающий дом строится по финским технологиям: наружные стены изготовлены из заводских трехслойных железобетонных панелей толщиной 390 мм, фасады утеплены - толщина утеплителя 150 мм - и закрыты декоративным слоем -толщина 90 мм. Расположение ЖК: идеальное место для комфортной жизни в городе Сертолово. В 200 метрах находится детская и взрослая поликлиники. Вблизи детские сады и школы. ЖК Сертолово Парк окружен прекрасным лесным массивом, что создает уникальную атмосферу спокойствия и природной красоты прямо за порогом вашего дома. Для детей и взрослых на территории ЖК имеются детские и спортивные площадки. Кроме того, чтобы обеспечить безопасность и уединенность, территория жилого комплекса полностью закрыта. 4 закрытых многоуровневых наземных паркингов с грузовым лифтом на 1200 машин.






































































































