2-08, Эксклюзивное предложение!
Продажа просторной евро трехкомнатной квартиры в закрытом поселке в экологически чистом районе Ленинградской области! Мечтая о загородной жизни, Вы давно искали для себя и своей семьи просторную квартиру на лоне природы, но не готовы были при этом отказывать себе в преимуществах и комфорте городской инфраструктуры?
Тогда это эксклюзивное предложение - для Вас!
Деревня Глинка, расположена в уникальной локации Тосненского района ЛО, в непосредственной близости от загородных жемчужин Санкт-Петербурга городов Пушкин и Павловск (всего 5-10 минут езды). Транспорт до метро Московская, Купчино, Звездная — в шаговой доступности (проезд занимает 30-40 минут).
Экологически чистый район, закрытая, благоустроенная территория поселка, вся инфраструктура и транспорт в шаговой доступности. Однородный социальный состав соседей, огороженная территория, заботливое ТСЖ, зимой дороги и территорию чистят и убирают.
Рядом большой торговый центр Березка магазины, аптека, пекарня, ресторан, пункты выдачи маркетплэйсов все в пешей доступности от дома! Также в шаговой доступности вся богатая инфраструктура города Павловска и поселка Федоровское, включая сетевые магазины, школы, детские сады и многое другое.
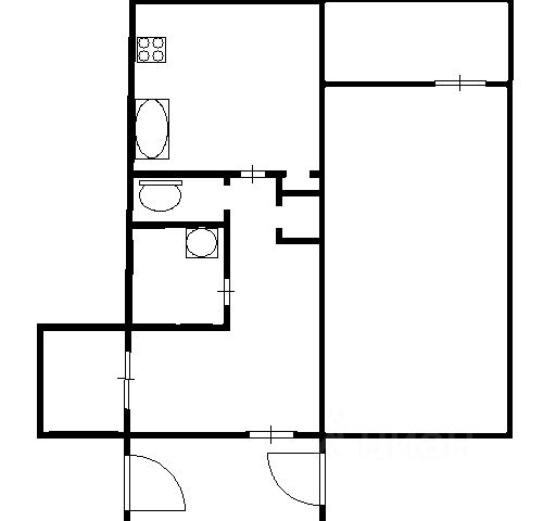
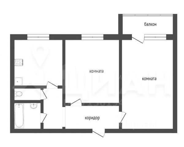
Квартира общей площадью 83,9 кв.м. Огромная просторная кухня-гостиная, площадью 22 кв.м, где так приятно собираться вечером всей семьей, а по выходным встречать большую компанию друзей; изолированные комнаты 20,5 и 11 кв.м., просторный санузел 11 кв.м.; потолки высотой более 3 метров, придающие дополнительный объем всем помещения; действующий дровяной камин, в котором так по-домашнему уютно потрескивают поленья зимними вечерами все для вашего удобства, уюта и комфорта! Каждый сантиметр квартиры продуман и сделан с учетом потребностей современной семьи в эргономике и комфорте. Дом и квартира очень теплые и энергосберегающие в любое время года.
Квартира полностью отремонтирована и готова к встрече с новыми хозяевами. В отделке использованы импортные строительные и отделочные материалы самого высокого качества. Можно сразу въезжать и жить, не затрачивая дополнительные средства, время и силы на ремонт и отделку.
Все документы готовы. Один взрослый собственник (не пожилого возраста, что актуально в наше не простое время).
Абсолютная юридическая прозрачность сделки проверена и гарантирована!
Квартира чистая, не обременена, не в залоге, не имеет долгов. Собственность более 10 лет. Ипотека и мат. капитал не использовались!
Квартира подходит под ипотеку любого банка! При покупке квартиры через наше агентство скидка к ипотечной ставке. Поможем с одобрением ЛЮБЫХ сложных заемщиков!
Все фото реальные, сделаны нашим агентом при личном осмотре квартиры.
Квартира продается БЕЗ комиссионных агентства!
Приветствуются все варианты оплаты, в том числе ипотечные кредиты, субсидии, сертификаты, материнский капитал, военная ипотека и т. д.
Просмотры возможны в ЛЮБОЕ удобное Вам время! Продается 2-комнатная квартира (вторичка) В Тосненском районе Ленинградской области.