Хорошая цена
Комендантский проспект
10 минут на транспорте
17 500 000 ₽
229 358 ₽/м²
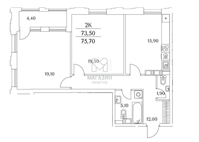
ПРОСТОРНАЯ КВАРТИРА С ПРЕДЧИСТОВОЙ ОТДЕЛКОЙ
Срочно продаётся 2-комнатная квартира общей площадью 76,3 м2. в Приморском районе Санкт-Петербурга. Квартира находится в среднеэтажном доме комфорт-класса со всем необходимым для жизни. Идеальный вариант для тех, кто хочет жить в спокойном районе в окружении природы.
О квартире:
- Квартира находится на 11 этаже 13-этажного дома
- Общая площадь квартиры 76,3 м2
- Просторная спальня 19,3 м2
- Уютная детская 12,5 м2
- Светлая кухня 14,6 м2
- Раздельный санузел 2,7 м2 + 5,1 м2
- Застеклённая лоджия 5,4 м2
- Гардеробная комната 3,9 м2
PRO дом и район:
- По периметру комплекса и в местах общего пользования ведется круглосуточное видеонаблюдение. Для автовладельцев предусмотрены подземный и наземный паркинги с пит-стоп станциями.
- Во дворах спроектированы детские и спортивные площадки для разного возраста, установлены скамейки для отдыха.
- В пешей доступности работают 12 детских садов и 25 государственных школ. В состав комплекса входит собственный детский сад на 100 мест.
- Территория комплекса благоустроена, на ней выполнено озеленение. Напротив дома располагается Юнтоловский лесопарк.
- До метро Комендантский Проспект — 20 минут транспортом. Удобные выезды на ЗСД и КАД в 5 минутах езды на автомобиле.
Прямая продажа, один правообладатель.
Не упустите свой шанс!
Звоните прямо сейчас, пока объект в наличии!


















































































