Только на Циан
Приозерск
7 минут на транспорте
2 600 000 ₽
56 156 ₽/м²
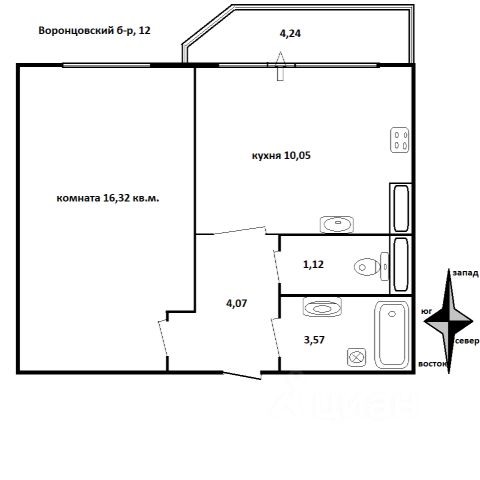
Предлагается к продажи просторная благоустроенная трехкомнатная квартира на первом этаже в двухэтажном деревянном доме, расположенного в красивом сосновом бору. В пешей доступности продуктовые магазины, остановка, до центра г. Приозерск 25 мин. пешком. Тихое уютное место. Чистый воздух. Хорошее сообщение с СПБ. Можно использовать как дачный вариант, можно проживать постоянно. Звоните, подробности по телефону.
























































