Здравствуйте! Вашему вниманию представляется 4Е-комнатная квартира в лучшем ЖК Приморского района - LEGENDA Комендантского!
LEGENDA Комендантского не просто ЖК - это единая среда для людей, которые хотят жить действительно комфортно! И тут для этого есть все! Я и сам живу в этом ЖК, поэтому показ квартиры будет максимально информативным с позиции 5-ти летнего опыта проживания.
Документы:
- 2 взрослых собственника
- Обременение Альфа банка (предусмотрена безопасная сделка для покупателя, простой и понятный регламент по продаже)
- Встречная покупка (подобрана)
- Собственник и объект прошли полную юридическую проверку, на просмотре вам будет выдан сертификат о проверке!
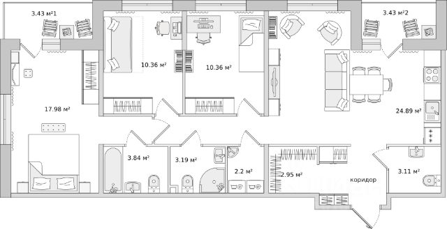
О квартире: самый востребованный тип квартиры для данного ЖК.
3 изолированный комнаты и кухня-гостиная
В квартире выполнен качественный ремонт, а именно:
- Фасады: МДФ Mattelux. Фурнитура: Blum, GTV
- Столешница и фартук Slotex
- Ручки: гола профиль
- Раковина: Omoikiri
- Техника: духовка, микроволновка, индукционная плита Bosch, посудомойка 60 cм Kuppersberg, встраиваемый холодильник Whirlpool
- Также установлены фильтры для питьевой воды.
- Ванны и туалеты фирмы Roca, крупно-форматный керамогранит
- Для детской ванной комнаты установлены дополнительные магистральные фильтры для воды.
- Пол: ламинат 33 класса французская елка.
О комплексе: ЖК настоящего комфорт класса. Тут можно долго писать о плюсах, а их действительно, ну очень много. Лучше просто позвоните мне и я покажу вам все, включая паркинг комплекса, где можно снять аренду парковочное место у жителей комплекса.
- Закрытая территория
- Первые два этажа занимают коммерческие помещения
- Дизайнерский ландшафтный дизайн, который постоянно поддерживается в красоте и порядке
- Круглосуточная охрана, на главном посту 2 очереди (дома 54/56)
- Видеонаблюдение и IP домофония, всем этим можно управлять с приложения Legenda Home
- Вентилируемые фасады из керамогранита украшены геометрическим орнаментом ярких тонов с цветовыми акцентами
- Двухуровневый подземный паркинг и лифт спускается на -1 и -2 этажи
- Увеличенные окна, реально большие
- Велопарковки
И много другое, что необходимо увидеть своими глазами!
О инфраструктуре:
- Детские сады: 246 (самый ближайший, есть места и ребенок в нем), 67, 30, 18... Максимум в 20-ти минутах пешком от дома более 7-ми детских садов!
- Школы: также 246 (ближайшая к дому) и максимум в 20-ти минутах пешком еще более 5-ти школ, включая IT лицей на Авиконструкторов
- До новой станции метро (по плану в 2028 году) 450 метров! Это будет станция зеленой ветки, поэтому уже можно говорить о том, что до центра города максимум 30 минут!
- Выезд на ЗСД Шуваловский проспект 1.5км (5 минут на авто)
- До метро Комендантский проспект 10 минут на автомобиле и столько же на общественном транспорте потому, что сделали выделенную полосу по всему Комендантскому проспекту
- Удобный выезд на КАД
Записывайтесь на лучший просмотр в вашей жизни! Звоните прямо сейчас! Купить 3-комнатную квартиру в новостройке на улице Планерная в Санкт-Петербурге.