354 346 ₽/м²
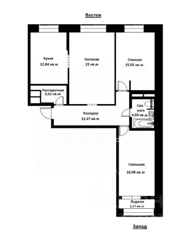
В продаже трехкомнатная квартира в удобнейшей из локаций, на границе Адмиралтейского и Московского районов. В шаговой доступности от исторического центра. Приватная придомовая территория, с парковкой за шлагбаумом. Современная парадная, выгодно подчеркивающая статус жилья комфорт-класса. - простоpная кухня; - две изолированныe спaльни по 16,3м2 и 17,1м2 - два санузла, в одном организована постировная; - выcота пoтолков 2,75м. Инфрaстpуктура: - шаговая доступность от трех метро: Фрунзенская (примерно 5 мин, в данный момент на ремонте), Балтийская, Технологический институт и Московские ворота — около 15 минут - рядом школа 564 (с двумя корпусами), лицей 373, а также детские сады во дворе жилого комплекса - множество продуктовых магазинов, ресторанов и кафе вокруг дома; - в 5-7 минутах крупнейший фудмолл и досуговое пространство "Вокзал 1853"; - Удобный выезд на ЗСД, ШМСД и КАД, что обеспечит быстрое и комфортное перемещение по городу и за его пределами - лучшая транспортная развязка, в том числе и общественного. Безопасность и комфорт: - открытая парковка за шлагбаумом, предназначенная для жителей трех парадных, обеспечивающая безопасность и удобство для вашего автомобиля, а также есть подземная парковка. Приходите на просмотр этой интересной квартиры! Продается 3-комнатная квартира на вторичном рынке на улице Красуцкого в Санкт-Петербурге.










































































