880 000 ₽/м²
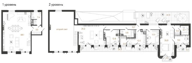
"Коллекционер" — клубный дом от RBI на 69 коллекционных квартир с террасами и люкарнами в Петроградском районе Петербурга на улице Чапыгина. Здесь роскошь пустоты и камерного уединения, воплотившаяся в модернистской архитектуре с элементами ар-деко, рождает новые вечные смыслы. Окружение располагает: среди роскошных доходных домов XIX века и уютных садов Петроградской стороны, которые хранят память былых столетий, пробуждается особое внутреннее стремление создавать новое, неподвластное времени. Средняя площадь квартир в проекте — 85,3 м². В коллекционной квартирографии выделяются исключительные лоты: 9 квартир с люкарнами и террасами, 4 из которых — двухуровневые, 2 из них — с двусветной гостиной и потолками до 6,4 м. В башнях-доминантах, которые проглядываются с Каменноостровского проспекта, ещё две уникальные квартиры: здесь потолки в кухне-гостиной достигают высоты 3,75 м. Все квартиры продаются без отделки. Окна и балконы — алюминиевые с накладками из натурального дерева внутри квартиры. Со стороны улицы Чапыгина коллекционеров и их гостей встречает парадный курдонёр с лаунж-зоной на открытом воздухе. Войдя в дом, вы попадаете в роскошное лобби, где за изящной стойкой ресепшн вас приветствует хостес. В центральной входной группе предусмотрели кофепоинты — чтобы в уютной зоне ожидания вы могли пообщаться с подругой за чашечкой свежесваренного эспрессо. Для деловых переговоров и интеллектуальных дискуссий — переговорные комнаты, которые может забронировать каждый из жителей. Направляясь из лобби во вторую секцию дома "Коллекционер", вы попадаете в анфиладную галерею в духе античной пинакотеки. Здесь каждый день вы можете вдохновляться глубокими акварелями Латифа Казбекова и скульптурными симфониями Виктора Грачёва — пространство healing arts у вас дома. Чтобы вы могли наполняться энергией и созерцать природную гармонию в приватной обстановке, во внутреннем дворе обустроили двухуровневое патио. Здесь, среди горных сосен, изысканных гортензий и клёнов, предусмотрели всё для зарождения вашей новой коллекции впечатлений: беседки под навесом — для сосредоточенной работы, уединённые лаунжи — для камерного общения и отдыха, качели-гнёзда за живой изгородью — для погружения в глубину своих мыслей, игровые площадки от Richter RUS — для счастливого детства ваших детей. Извилистые грунтовые дорожки ассоциируются с дворцово-парковыми ансамблями пригородов Петербурга и деликатной роскошью императорских резиденций. На всей территории сада — свободный Wi-Fi. Попасть сюда могут только жители по электронному цифровому ключу. Для жителей оборудуют подземный паркинг на 57 м/м, 10 из которых — с зарядкой для электромобилей. На втором этаже предусмотрены кладовые — их всего 45, они докупаются отдельно. "Коллекционер". Ваша коллекция впечатлений Купить 5-комнатную квартиру в новостройке в районе Петроградский в Санкт-Петербурге.





































































