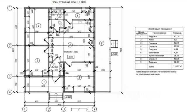
Добрый день! В шаговой доступности от центра Гатчины продается просторный дом на участке ИЖС О ДОКУМЕНТАХ: Юридически чистый объект, в собственности более пяти лет, без обременений, подходит под ипотеку любого банка. При необходимости бесплатно поможем с одобрением ипотеки на наиболее выгодных условиях. О ДОМЕ: Дом построен на ленточном фундаменте с залитой плитой по всей площади дома. Стены первого этажа из бруса- кругляка, второй этаж каркасный. Фасад дома пеноблоки, крыша из металлочерепицы. Электричество 15 кВт, газовое отопление, также имеется и электрический котел, вода из собственной скважины, на входе в дом установлены фильтры. Канализация посредством 2 колодцев по 3 железобетонных кольца. На первом этаже дома из просторного коридора вход в стильную кухню (9 м2), отдельную уютную столовую (9 м2) и просторный светлый зал (28 м2) с камином. На первом этаже размещены также совмещенный санузел, гардеробная и котельная, два погреба. Из столовой и зала имеются выходы на террасу (24 м2). Единым пространством застелен пол ламинатом. Стены оформлены под покраску, декорированы обоями, декоративным кирпичом. Основная потолочная площадь представлена натяжным потолком с основным освещением, в доме продумана до мелочей вся архитектура освещения. Теплый пол по всей площади первого этажа. Из зала лестница ведет на второй этаж. На втором этаже размещены 3 спальни ( 9 м2 и по 13 м2), в которых произведен ремонт, за исключением наличия межкомнатных дверей, также имеются гардеробная (7 м2), помещения под кабинет или спальню (10 м2), ванную комнату и санузел, просторная светлая комната с окнами (13 м2), но здесь все стены и полы подготовлены под воплощение фантазий в интерьере будущего собственника. Из 2 спален выход на балкон (24 м2), что создает ощущения простора, свободы и уединения с природой. Чистый ухоженный участок с двумя теплицами, плодовыми деревьями и ягодными кустарниками. Участок размежеван и огорожен забором со всех сторон. Установлено видеонаблюдение. ПРО ИНФРАСТРУКТУРУ И ЛОКАЦИЮ: Дом находится в шаговой доступности от центра Гатчины. Удобные подъездные пути к дому.









































