
Магистральный газ

Рядом река, пруд

Рядом лес
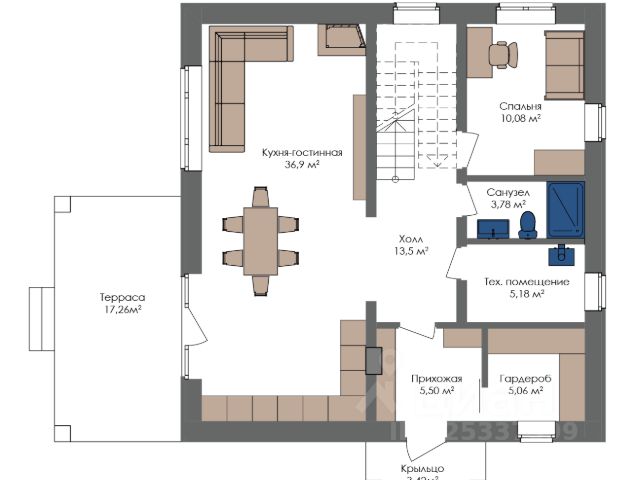
Номер объекта: 538242. В продаже находится домовладение площадью 610 м² на участке 19 соток в поселке Оберег, расположенном на берегу реки Сестры. Этот современный и богатый инфраструктурой поселок славится своими красивыми перепадами высот и вековыми соснами, создавая уникальную атмосферу для жизни и отдыха.
Данный проект расположен на уникальном видовом участке на возвышенности, из окон гостиной и хозяйской спальни открывается удивительный вид на земли лесного фонда и верхушки деревьев.
Одним из основных приемуществ данного проекта помимо локации являются условия покупки:
Беспроцентная рассрочка до 3 лет (на этапы строительства) с минимальным первоначальным взносом всего в 25%
В данном локации я уже 11 лет работаю с 17 поселками и могу предложить условно альтернативные (сопоставимые) варианты в каждом из них, подробно обсудить ситуацию и перспективы развития данной локации, динамику цен, планы по новым проектам и дать рекомендации в зависимости от Ваших пожеланий.
Далее подробнее об Обереге:
Если коротко, это единственный проект в СПб и ЛО, который сочетает в себе красивую природу с перепадами высот, соснами и берегом реки, проверенного застройщика, который сам строит все дома, а не просто распродает землю, богатую инфраструктуру с бассейнами, фитнесом, коворкингом и самые лояльные условия входа в проект.
В поселке предусмотрен ряд современных удобств, создающих комфортную и безопасную атмосферу для жизни:Оборудованная и освещенная набережная реки Сестры длиной 1,5 километра, где вы сможете насладиться потрясающими видами и свежим воздухом.Прогулочный променад протяженностью 4 километра внутри поселка, идеально подходящий для утренних пробежек и вечерних прогулок с семьей.Фитнес-центр, оборудованный современными тренажерами, уютными залами для индивидуальных занятий с тренером.Спортивный бассейн с подогревом длиной 25 метров на три дорожки.Детский подогреваемый бассейн, где ваши малыши смогут наслаждаться водными играми.Уличный игровой городок, полный увлекательных развлечений и ярких эмоций для детей.Универсальная спортивная площадка, идеально подходящая для игры в волейбол, баскетбол и хоккей, где каждый сможет продемонстрировать свои спортивные навыки.Живописная трасса для лыжных прогулок, предлагающая наслаждаться зимними пейзажами и активным отдыхом на свежем воздухе.Островок на реке, специально организованный для медитации и отдыха в тишине и гармонии с природой.Два теннисных корта, где азарт и спортивный дух никогда не угаснут.Мини-футбольное поле для любителей активного отдыха и командных игр.Коворкинг с современными оргтехникой, позволяющий работать в комфортной обстановке.Переговорная комната, идеально подходящая для встреч с партнерами и обсуждения важных деловых вопросов.Пункт приема доставки продуктов из города с морозильной/камерой, что обеспечивает удобство в повседневной жизни.Консьерж-сервис, готовый оказать помощь в любых вопросах и сделать ваше проживание максимально комфортным.
В стоимость входит готовый дом без отделки и земельный участок.
Монолитно-стеклянный дом в стиле Deluxe минимализм подчеркивает совершенство не только формы, но и содержания. Благодаря использованию высококачественных материалов и высочайшей степени надежности, дом не потребует дополнительных существенных вложений на протяжении десятков лет. Совершенная эргономика и продуманные планировки в лучших традициях скандинавского рационализма обеспечивают комфортное проживание.
Конструктивные особенности дома включают фундамент в виде монолитной железобетонной теплоизолированной плиты (марка бетона В30) с заложенными коммуникациями, контуром заземления, дренажной системой и каналами для прокладки кабелей освещения прилегающей к дому территории. Стены первого и второго этажей выполнены из двухкамерных стеклопакетов, заполненных аргоном в алюминиевых рамах. Внутреннее стекло закаленное, селективное, с центральным F-стеклом, а внешнее — закаленное и солнцезащитное. Глухие стены сделаны из газобетона толщиной 400 мм, крыша — монолитная с наплавляемой кровлей.
Для увеличения уровня комфорта дом разделен на три функциональных юнита: спальный юнит включает две просторных спальни с гардеробными и две спальни с отдельными санузлами, предлагая великолепный вид из окон на сад и сосновый лес; жилой юнит состоит из просторной кухни-столовой площадью 49 м², гостиной 44 м², зоны камина 19 м², кабинета (гостевой комнаты) и спа-зоны; хозяйственный (технический) юнит включает гараж на три автомобиля, котельную, кладовую и помещение для персонала.
Инфраструктура поселка Оберег обеспечивает все необходимое для комфортной жизни на природе с сохранением всех благ цивилизации: центральный водопровод, газ, канализация, технологичная система водоотведения, от 20 кВт электроэнергии на каждое домовладение и широкие (6 м) асфальтированные дороги.
Поселок Оберег расположен в сосновом лесу в одной из самых престижных локаций Ленинградской области, на берегу реки Сестры недалеко от Курортного района в поселке Ленинское.
Я с радостью проведу подробную экскурсию и сравнительный анализ всех имеющихся предложений в данной локации.