


173 214 ₽/м²
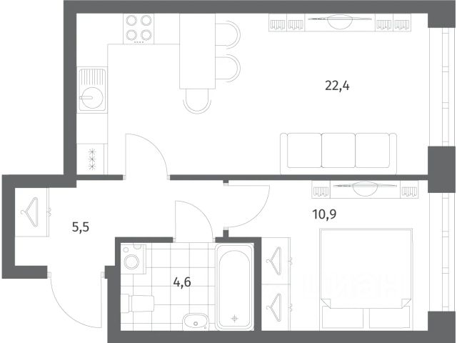
Продается квартира площадью 52.08 м² на 3 этаже 1 секции в NEWПИТЕР от компании ГК "ТРЕСТ". Площадь кухни 15.42 м². Жилой квартал расположен в пос. Новоселье. Прописка Ленинградская область. В 2022 году жилой комплекс NEWПИТЕР (НЬЮПИТЕР) стал победителем в номинации премии Urban Awards "Лучший проект комплексного освоения территории Санкт-Петербурга и Лен. области". В квартале предусмотрено строительство более 30 кирпичных домов высотой от 5 до 18 этажей, двух школ, одна из которых работает с 2020 года, шести детских садов, три из которых уже открыты, современного спортивного комплекса и бизнес-центра, а также паркингов из расчета одно машиноместо на каждую квартиру. Дворы домов проектируются закрытыми и свободными от автомобилей, а в каждом подъезде создаются помещения для хранения колясок, велосипедов и спортинвентаря, которыми могут пользоваться все жильцы. Квартиры в ЖК NEWПИТЕР (НЬЮПИТЕР) можно приобрести с современной отделкой от застройщика. Предусмотрено два варианта чистовой отделки "Ваниль" и "Шоколад". Стоимость отделочных работ составляет 42 000 рублей за квадратный метр. Чистовая отделка в квартирах ЖК NEWПИТЕР (НЬЮПИТЕР) предполагает монтаж натяжных потолков, укладку ламината, оклейку стен обоями под покраску, установку светильников и межкомнатных дверей. При отделке новой квартиры применяются качественные, натуральные и экологичные материалы, монтируется импортная сантехника европейских брендов. Помимо чистовой отделки компания "ТРЕСТ" предлагает воспользоваться услугой "Белая подготовка под ремонт" по цене 16 000 рублей за квадратный метр. В стоимость входит разводка ХВС/ГВС, выполнение стяжки пола, расширенная разводка электрики, грунтовка, оштукатуривание и шпаклевание стен, выполнение оконных откосов и установка ПВХ подоконников. В объявлении указана стоимость квартиры при 100% оплате или ипотеке. При других формах оплаты - базовую стоимость квартиры уточняейте на официальном сайте компании или у менеджера отдела продаж. Срок ввода в эксплуатацию Лот 4: 4 кв. 2026 г.





























































































































































