Первичная продажа



3 акции
сдача ГК: 3 кв. 2028 года
Тосно
5 минут на транспорте
8 197 200 ₽
163 258 ₽/м²
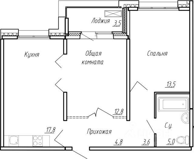
Однокомнатная квартира-трансформер 50,21 м² в ЖК "Рауни" — практичное решение для комфортной жизни сегодня и завтра. За счёт гибкой планировки пространство можно адаптировать под разные сценарии жизни: выделить отдельную спальню, кабинет или детскую с помощью перегородки, например стеклянной двери. Такой формат помогает использовать площадь рационально и менять квартиру под актуальные задачи без сложной перепланировки.
Квартира с предчистовой отделкой. Выполнены стяжка пола, выровнены стены и подготовлены все коммуникации, включая электрику и сантехнику. Это позволяет сразу переходить к чистовой отделке — оклейке обоями или покраске стен, укладке полов и установке дверей.
ЖК "Рауни" — это современный жилой комплекс комфорт-класса в Тосно, где сочетаются камерный формат, благоустроенная территория и продуманная среда для жизни. В проекте предусмотрены закрытый двор, детские и спортивные площадки, современные входные группы и парковочные места рядом с домом. Комплекс подойдёт тем, кто ценит спокойную атмосферу, удобство и близость всего необходимого для повседневной жизни.
Рядом находятся школы, детские сады, магазины и медицинские учреждения. Вокруг — зелёные зоны, прогулочные маршруты и природные места для отдыха. Удобное транспортное сообщение с Санкт-Петербургом делает локацию комфортной для жизни, работы и регулярных поездок в город.



















































































