85 294 ₽/м²
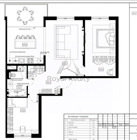
ID: 1913586 Крайний этаж с хорошим видом из окон и лоджии! После хорошего ремонта! Перепланировок нет! Готова для проживания. Никто ещё не жил после ремонта! Делали под себя! Качественно! Возможна продажа с мебелью (диван, комод, тумбы, бытовая техника). До ж/д станции Прибылово 400 метров (поезд от Финляндского вокзала). До магазинов СтройУдача, Магнит, Пятёрочка и Сбербанка не более 400 метров! Рядом залив, лес и красота! Очень хороший вид из окон - лес. Звоните! Смотрите! Покупайте!



























































