140 449 ₽/м²
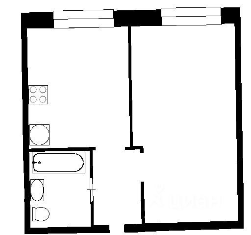
Есть возможность приобрести в рассрочку! Продается однокомнатная квартира в живописном поселке Шушары, на территории Ленсоветовского! Общая площадь квартиры составляет 35,6 кв. м, из которых 14,9 кв. м занимает уютная жилая зона, а 8 кв.м. занимает площадь кухни. Квартира расположена на 3 этаже 6-этажного кирпичного дома, построенного в 2007 году, и радует высокими потолками 2,65 метра, создающими атмосферу легкости и простора. Внутри выполнен косметический ремонт, который позволяет вам сразу же заехать и наслаждаться жизнью в новом доме. Эта квартира наполнена уютом благодаря окнам, выходящим во двор. Просторная кухня полностью оборудована всей необходимой техникой, а санузел является совмещённым. Вы будете приятно удивлены дружелюбными соседями и чистой, аккуратной парадной. Дом находится в отличном состоянии, а для владельцев автомобилей предусмотрена наземная парковка. Район с развитой инфраструктурой: в шаговой доступности находятся школы, детские сады и магазины, что делает жизнь здесь максимально комфортной. Ближайшая станция метро — Шушары. Один взрослый собственник, никаких обременений, прямая продажа! Звоните прямо сейчас, записывайтесь на просмотр, и я с удовольствием расскажу вам все детали и организую оперативный показ! Ваш новый дом ждет вас! Код пользователя: 33910 Номер в базе: 5801472 Квартира в ипотеку в территории Ленсоветовский в поселке Шушары.

















































































